We take into account the features of the layout
A typical Khrushchev has a very small kitchen - 5-6 squares. Another feature is low ceilings up to 2.7 meters. Double rooms without redevelopment are often inconvenient, especially if the second room is a walk-through.
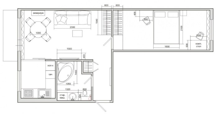
The standard area of a two-room Khrushchev is about 43-44 square meters. The houses are five-storey. Most of the rooms are adjoining, the windows face one side (except for a corner apartment with two windows). As the advantages of the Khrushchev, the presence of a pantry and a balcony can be distinguished.
Take a look stylish design project of a two-room apartment of 44 sq m in Khrushchev.
Consider the most common types of layouts in more detail.
Book
This layout is considered the most unsuccessful: a walk-through room with a wide doorway plays the role of a dining room, and in a family with children - also a bedroom. Solitude in such a space is difficult to achieve. To divide the premises, you will have to sacrifice part of the room. Without partitions, the demolition of which requires permission, the Khrushchev can be turned into a spacious studio.
In the photo is a small corner kitchen with a built-in refrigerator and a table inscribed in the windowsill.
Tram
Such a popular name (the word "locomotive" is also used) was given to the layout for the rooms located one after the other, reminiscent of carriages. The living room with a balcony is a walk-through, but the alteration solves this problem: if you cut off part of the room and turn it into a corridor with two entrances, you can organize a storage system in the resulting niche.
Pictured is a cream room with an accent wall in the TV area.
In the photo there is a project of a two-room Khrushchev, 44 sq. m.
Undershirt
Quite a convenient layout, in which the rooms are separated by the kitchen and the hallway, but this type of Khrushchev is not common. It is also called "butterfly" due to the similarity of rooms with symmetrical wings.
On the picture tiny kitchenwhere glossy white nividim cabinets occupy the entire ceiling space.
We think over redevelopment
Owners of budget two-room Khrushchev more and more often decide on alteration of the apartment, and rightly so: redevelopment allows you to divide two rooms, isolate family members from each other, and increase free space.
Important points when renovating an apartment
Before starting the restructuring, you need to pay attention to several nuances:
- Before repairing, you should draw up a detailed design project with all calculations. This will help avoid any hiccups in the future.
- All changes in the Khrushchev building must be made in the technical passport of the apartment, for this you need to contact the BTI.
- Not all floors inside the Khrushchev are not load-bearing, so it will not be difficult to agree on such an alteration. But there are times when this is not possible at all!
Popular options
Practice shows that the reconstruction of Khrushchev houses gives an amazing result - when combining a bathroom, space is freed up for a washing machine; when the partition is demolished between the room and the kitchen, there is space for the dining table. The diagrams below show several more ways to increase the comfort of two-room Khrushchevs.
2 adjoining rooms in Khrushchev
Adjacent rooms are those that have a common wall. The layout with adjoining rooms and different entrances is called "mini-improved". If the apartment has pantry, due to it, you can increase the area of \ u200b \ u200bthe kitchen: the pantry is disassembled, the bathroom is transferred to its place, and 3 square meters are added to the kitchen area.
The photo shows an enlarged kitchen in a two-room Khrushchev, where there was a place for a dining table.
Without a partition between the kitchen, the Khrushchev building will turn into a euro-apartment building, and the owner will receive a spacious kitchen-living room. If the kitchen is gasified, the opening must be equipped with a sliding partition. The loggia can be insulated and used as cabinet.
With a walk-through room
This layout is convenient if a person lives alone. The tiny kitchen has enough room for a small table and everything needed for cooking, and one of the rooms will become a living room with a passage to the bedroom. If a couple or a family with a child lives in a two-room Khrushchev, the apartment needs alteration. Due to the construction of an additional partition, the corridor is increased, the interior door is moved to a new location and the residents receive two isolated rooms.
The photo shows the updated Khrushchev, where the passage room protrudes dining room and living room.
Due to the reconstruction of the flooring, many designers achieve an increase in the height of the room up to 3 meters. This allows you to visually change the appearance of the room, build in high roomy cabinets and install loft bed.
From kopeck piece to three-room apartment
When arranging treshki in a small-sized Khrushchev, the rooms will significantly decrease in size. One of them may lose daylight. The way out in such a situation is windows in the partition, openings under the ceiling or a false window.
The photo shows a completely changed two-room Khrushchev: the bedroom is located behind a wall with a window, and the corridor has been converted into a living room.
Studio in Khrushchev
If you demolish all the walls (with the exception of the load-bearing ones), you get an apartment with an open plan. All that remains is to zone the space with a table, light partitions or upholstered furniture.
The photo shows a modern apartment with history and free planning.
We do competent zoning
A spacious room often needs division into zones... It is convenient to separate the kitchen from the room with a table or a bar counter. To hide bed in the living room, glass or slatted partitions are erected, screens are placed, curtains are hung. It is important that the structure does not "eat up" the space.
In the photo, a small kitchen is separated multifunctional bar counter.
Useful separate areas with open shelving: it will play not only the role of a partition, but also become a storage place for things.
In the photo is a partition-rack that separates the sofa and the bed. In order not to clutter up the room, some of the things are put into boxes.
We work out the design of each room
Let's consider the design of a two-room Khrushchev in detail, because each separate room has its own characteristics.
Living room design in Khrushchev
The more people live in the apartment, the more loaded central room in Khrushchev - hall... So that all family members are not only comfortable gathering here in the evenings, but also to receive guests, the place to sleep should be hidden. A good way out - folding sofa bed... When folded, it does not take up much space. Opposite him you can hang the tv or install a decorative fireplace. Sometimes a walk-through room can combine the role of a dining room, living room and bedroom.
Kitchen
IN cramped kitchen 6 sq. meters not easy to place modern equipment and dining area.Without redevelopment, in such a small area, a four-burner stove, a work surface and a refrigerator can hardly fit.
Look a selection of ideas for the kitchen in Khrushchev.
To save precious centimeters, it is recommended to use built-in appliances (it takes up less space), two-burner stoves, and transforming furniture. If you move the communications to the window, the sink can be built into the window sill. It is easier to equip the dining room in the room, or in the passageway between the kitchen and the room that was freed after the demolition of the partition.
In the photo is a kitchen in a two-room Khrushchev, pasted over photo wallpaper with perspectivethat make the room visually deeper.
Bedroom
A place to sleep and rest is most often located in the back room. In the standard series, this is a narrow space, reminiscent of a trailer, in which there is space for a double bed, a wardrobe and a table. Decorated in neutral colors so as not to overload the atmosphere. Mirrors are used to expand the space, and furniture on legs is used to make the interior light.
Look more examples of bedroom design in Khrushchev.
A great option is to use mirrored cabinets on the sides of the bed, which, as it were, goes deeper into a niche. A shelf at the head is used for storing things.
Bathroom and toilet
In two-room Khrushchevs, both separate and combined bathrooms... The best way to save space is to install a shower stall, but not every year give up a full bath.
Take a look how to make a beautiful design in the bathroom.
The washing machine can be installed under or instead of a sink. To preserve air and light in a small bathroom, it is worth using a minimum of multi-colored elements and open shelves. For decoration, it is better to choose white glossy tiles, its use gives an amazing effect: borders are visually erased, the amount of light increases.
The photo shows a white bathroom in a minimalist style, the niche of which is framed by a mirror.
Children's room
The small dimensions of a two-room Khrushchev for a family with a child is not a reason to abandon an interesting and functional design: you just need to apply a few tricks during the repair, which will allow you to fit everything you need in the nursery. These are images on the wall, and corner tables, and bunk beds. The space between the ceilings cannot be neglected either - lockers with things can be placed there.
Take a look how to correctly arrange a nursery in Khrushchev.
Hallway and corridor
To use hallway in Khrushchev for storing outerwear and shoes, it is recommended to choose a closet to the ceiling: this will save space and fit more things. Some two-room Khrushchevs are equipped with storage rooms that can be converted into dressing rooms.
Cabinet or workplace
A place to work at a computer often requires privacy. The office can be arranged on a warmed balcony, in a niche, set aside a few meters by the window, or hidden behind curtains.
What is important to consider when renovating an apartment?
A small apartment can look stylish and spacious if you approach renovation with imagination. Experts recommend decorating the walls and ceiling in light pastel shades, but you can always step back from these tips: for example, make the ceiling half a tone darker, add bright accents, original furniture, and dynamic prints. A decorative fireplace will decorate the living room, add coziness and elegance.
In the photo there is a light finish in the living room with a built-inwardrobe with mirrored doors, which significantly saves space, increases light and visually deepens the room.
The photo shows the repair of a two-room Khrushchev in the Provence style.
The trend is still a floor with natural wood-like textures that blends in with any setting and adds warmth. When renovating narrow spaces, lay laminate or parquet flooring across the room to visually expand it.It is better if the entire apartment has the same flooring (except for the bathroom and the kitchen): this will maintain the unity of the design.
See another one an interesting renovation project in a kopeck piece for 800 tr.
On the picture living room in loft style with a laminate laid across the room.
We equip a kopeck piece with comfort
To make the space cozier and more interesting, it is worth using multi-level lighting in a two-room Khrushchev. Spotlights in the ceiling look modern and functional: you can route the wiring so as to regulate the amount of light. Local lighting deepens the space, while light from above accentuates low ceilings.
The arrangement of furniture plays an equally important role. Usually the rooms are divided into "private" and "public" areas. Even if more than two people live in the apartment, it is quite possible to create their own corner for everyone. For example, bed on the podium, which acts as a place for storage and sleep, gives a sense of privacy and seclusion.
To save space in the common area, you can use corner sofa (it occupies a corner, which often remains free), and instead of dining chairs, purchase stools (they are easy to hide under the table).
On the photo living room with original chandelier and a home theater decorated with LED strip.
The decor and textiles are what give a typical two-room Khrushchev house its originality. Blackout curtains add coziness, but narrow the space and absorb light, therefore, in order not to overload the room, you should choose a plain laconic fabric. Bright decorative details (paintings, wallpaper with fashionable prints, accent walls) look advantageous only against a neutral background.
Choosing a room style
Adhering to a certain style in the design of a two-room Khrushchev, the owner provides his dwelling with attractiveness and special character, and the small dimensions of the apartment fade into the background. Who will pay attention to the cramped living room, if it will designed in loft style? Flooded with light, with aged brickwork and original furniture, an industrial apartment will be remembered as a stylish space, not a "Khrushchev" building.
Scandinavian approach will be ideal for a small apartment: light colors, natural textures and fine lines in the decor and furniture design will surprisingly add airiness, spaciousness and at the same time comfort to the interior. If you apply the same techniques, reducing the number of things and decorations, the two-room Khrushchev will be decorated in the style of minimalism, which is distinguished by restraint and brevity.
The modern style incorporates all the best from other directions, differing in thoughtfulness and attractiveness of the environment. Bright accents are used everywhere, and furniture is versatile. Lighting, color design and mirrors will play to increase the area, perfectly fitting into the interior.
The classic style, thanks to exquisite furniture, luxurious decor in the form of arches, stucco moldings and expensive textiles, will create a sophisticated interior in which it will be easy to forget about the small dimensions of the two-room Khrushchev.
High tech - the style that stands out among others. As if peeped from the future, with an abundance of backlighting, gloss and rounded furniture in light colors, it will dissolve the borders and make Khrushchev unrecognizable.
In the photo there is a dining area decorated with mirrors that add complexity and depth to the room.
Photo gallery
Soviet standard apartments are no worse than others suitable for comfortable living: redevelopment can breathe new life into Khrushchev, and a stylish and thoughtful renovation will hide the shortcomings of a small space.











































































