general information
The clients are a young childless couple living in Nizhny Novgorod. The old Khrushchev building with an area of 40 square meters has two rooms with low ceilings (2.5 meters) and one combined bathroom. Clients dreamed of a cozy and bright interior in a Scandinavian style, but with expressive details.
Layout
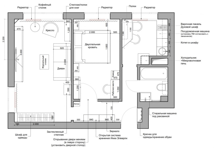
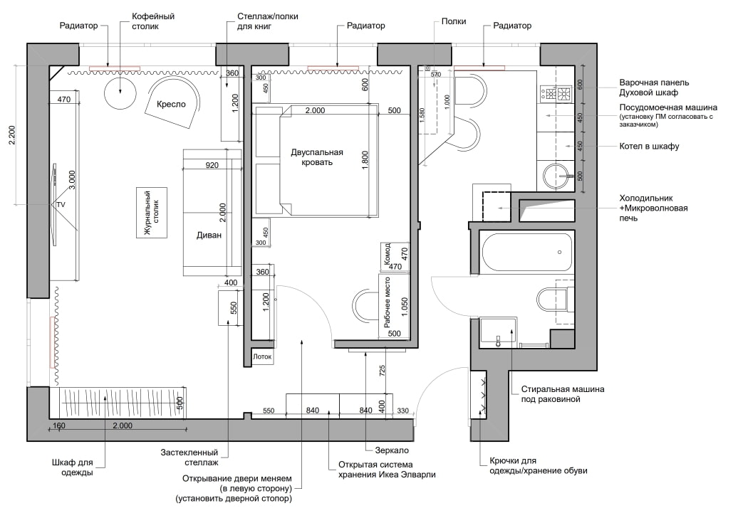
The walls were not tolerated and no redevelopment was carried out. The kitchen remained small, only 5 square meters. But the designer managed to place a convenient cooking area, a bedroom, a living room and a home office, as well as storage systems in the apartment.
See more others examples of layouts in Khrushchev.
Kitchen
Maria used a whole arsenal of techniques to arrange everything she needed in the tiny kitchen. Kitchen wall cabinets were chosen high, up to the ceiling: they fit all the dishes. Instead of a table, a bar counter with a beveled corner was installed - it connects to the windowsill and the countertop for cooking, thereby creating an integral composition.
Above the dining area are open shelves for decor and kitchen utensils. The stove was replaced with an oven and a two-burner hob.
Ornamented tiles and washable paint were used for the walls. Practical tiles were laid on the floor.
See also how to decorate a kitchen in Khrushchev.
Living room
The large room has plenty of natural light due to the two windows. The living room is designed for relaxation - there is a soft sofa for watching TV, a library with open shelves for books, a reading area in the form of a comfortable armchair.
Living room interior looks laconic and stylish not only thanks to the furniture, but also to the color scheme: gray-turquoise walls set the mood, and white furniture and beige laminate add light.
Bedroom with work area
The bedroom walls are painted deep blue. They add coziness and serve as a perfect backdrop for discreet furniture. The room has a place to sleep and work: in the corner there is a desktop with a stationary computer. The bedside table is hinged, it adds airiness to the atmosphere.
There was almost no budget for the decor, but the designer created an unusual composition from inexpensive frames, painting them in gold.
Look more examples of bedroom design in Khrushchev.
Hallway
Open racks for storing outerwear and shoes were placed in the corridor: they were purchased at IKEA. Tiles were laid on the floor, which continues into the kitchen, visually not "breaking" the tight space.
Be sure to see hallway decoration ideas in Khrushchev.
Bathroom
Before the repair, the toilet was located close to the washing machine and it was inconvenient to use it. It was moved to the place of the sink, and a rectangular sink with a special siphon was placed above the washing machine.
A small bathroom was decorated with white tiles, which made the room seem more spacious. A closed storage cabinet was hung over the toilet.
Take a look examples of bathroom design in Khrushchev and detailed article how to equip the interior of a toilet in Khrushchev.
Look moreinteresting project of a combined bathroom in Khrushchev.
List of brands
The walls were decorated with high-quality Delux paint and Mainzu Ceramica Decor Treviso tiles for the kitchen apron.
Laminate flooring in the living room and bedroom - Quick Step Eligna, Italian oak light gray.
The flooring in the hallway and in the kitchen is Dual Gres Chic Chester Gray tiles.
Furniture and lighting:
- In the corridor there is a hanger with a section for IKEA Pinnig shoes, an open storage system IKEA Elvarli.
- In the bedroom there is an IKEA Tissedal chest of drawers, an IKEA Mikke desk, a wall lamp - Loftdesigne 5517 model, pendant lamps - Eglo Lighting 85977, a chandelier Loftdesigne 7879.
- In the living room - IKEA Fabrikor showcase cabinet, Lightstar Muro sconce, Favorite Drolling chandelier, Gubi Grasshopper floor lamp.
- In the kitchen - furniture from IKEA.
The Scandinavian style is distinguished by restraint, but its laconicism is closely intertwined with expressiveness. The renovation with a limited budget turned the old Khrushchev into a space for people who value tranquility, nature and home warmth.






















