What do you need to know to agree on a redevelopment?
Redevelopment of an apartment must be coordinated and carried out in accordance with the law. Major changes in the repair require permission from special organizations.
Documentation
The following documents will be required:
- A statement detailing the redevelopment changes
- Project with a technical conclusion confirming the safety of the repair.
- Technical passport.
- BTI floor plan.
- Consent from everyone who lives in the apartment.
- A document proving the right to ownership of the home.
Terms of approval
The inspectorate makes a decision within 45 days. In case of refusal, it is possible to challenge the decision through the court. Upon receiving a positive answer, the owner of the Khrushchev, after the completion of the repair work, must invite the commission to sign the redevelopment act. The apartment is re-measured and changes are made to the technical passport.
Step-by-step instruction
The sequence of actions before starting the repair:
- To create a more comfortable design for the Khrushchev, first of all, the needs and wishes of each family member should be taken into account. Thus, you will learn to create all the necessary zones and not deprive anyone of personal space.
- Then you need to make measurements, and draw a project on their basis. The graphic plan should indicate all communications, furniture, partitions and other interior items.
- After the location of the main functional areas has been determined in the apartment and the preliminary project is ready, you need to contact specialized organizations to agree on the redevelopment.
Redevelopment methods: permissible and prohibited
A few things to consider.
| Allowable | Forbidden |
|---|---|
It is possible to demolish the partition between the toilet and the bathroom and combine these rooms. It is also permissible to expand the bathroom at the expense of the hallway. |
During redevelopment, the load-bearing walls must not be touched. |
It is appropriate to expand or lengthen the living room by connecting it to a part of the corridor space. |
It is forbidden to increase the bathroom at the expense of the living room. |
Combine the kitchen with an adjoining room, most often from the living room. |
Also, you cannot expand the kitchen space at the expense of a toilet or bathroom. |
Make additional doorways in the internal partitions of the apartment, which are not load-bearing. |
Combine the living space with a kitchen without doors, on which a gas stove is installed. |
Dismantle mezzanines, niches, storage rooms and other utility rooms to expand the space. |
It is unsafe to connect a warm floor to general heating and hot water pipes, as well as transfer the trajectory or shut off ventilation. |
Combine the room with an insulated balcony and dismantle part of the outer wall that is located under the window. |
Redevelopment is unacceptable for Khrushchev, which are in line for demolition. |
Possible redevelopment
Khrushchev is a small apartment with the same layout, in which rooms are not very conveniently located, there are low ceilings, narrow corridors, small kitchens and bathrooms. However, due to design possibilities that take into account all the features, an uncomfortable home can be made as comfortable and cozy as possible.
Redevelopment options for 1-room Khrushchev
Despite the modest dimensions, there are a number of possible examples of the transformation of a one-room apartment.
Khrushchev with two windows
The apartment is corner apartment with a balcony and two windows. A Khrushchev building with a similar layout may not be the best option, or vice versa, provide a large number of interesting redevelopment ideas.
The photo shows an example of redevelopment of a corner Khrushchev apartment with two windows.
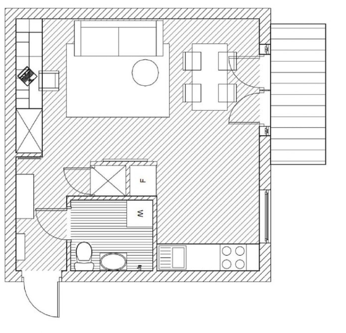
Khrushchev with one window
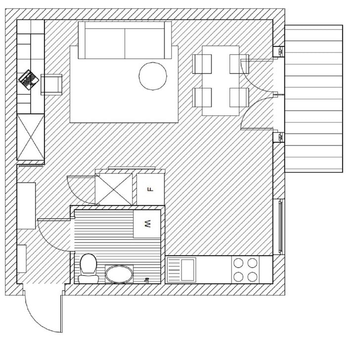
Odnushki, having one window and a balcony, are found in brick houses of the 1-511 series, in panel buildings of the 1-515 series and others. These apartments have a separate bathroom and a corridor. In Khrushchev buildings with a different layout, this space represents a living room, which creates a limitation when remodeling housing.
In the photo there is a redevelopment of a one-room Khrushchev apartment of 30 square meters with one window opening.
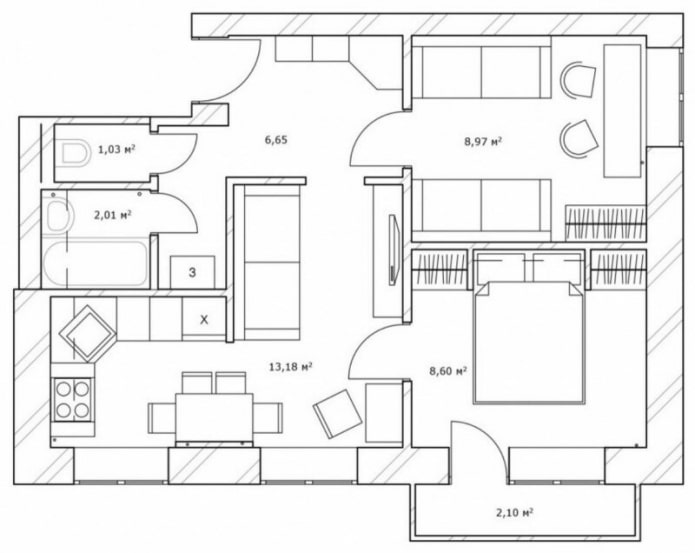
Redevelopment from 1-room to two-room Khrushchev
The easiest and most affordable way to redevelop is to install a plasterboard partition and make a doorway in it. Thus, you will get two small rooms with different functional purposes.
It is also possible to transform a one-room Khrushchev into a two-room or a lorry one and a half by means of sliding doors, which will not take up much space and will allow you to isolate rooms such as a nursery, a bedroom or a hall.
The choice of furniture designs plays a significant role in design. For example, built-in household appliances in the form of a reduced refrigerator or a small stove will help save space.
In the photo is a one-room apartment Khrushchev with redevelopment in a two-room apartment.
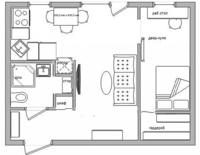
Conversion from a one-room studio to a studio
Khrushchev's apartment is often converted into a studio. This original version is more youthful. Redevelopment consists in dismantling partitions between the living room, kitchen and corridor. In this case, the bathroom is not affected, the transfer of this room is possible only if the apartment occupies the first floor.
The single room also makes an excellent studio space with an isolated sleeping place with a bed and a wardrobe.
Allowed redevelopment of a 2-room Khrushchev
Due to the cramped and inconvenient layout of the kopeck piece, the owners decide on radical changes.
Two adjoining rooms
With 2 adjacent rooms, re-planning the space is much more difficult. You have to touch the living space and sacrifice useful square meters.
If the bedroom is in contact with the hall, the corridor continues along the width of the passage, thereby isolating the living room. The size of the hall is reduced, but a separate door appears, leading to a second room. In some Khrushchev buildings, the hall can be expanded due to the territory of the balcony.
Another option is to demolish the partition between living quarters and create a long corridor. The resulting wall will act as a dressing room or a convenient pantry.
Combining kitchen and living room
The most common re-planning solution. During repairs, partial demolition of the wall between the kitchen and the hall is possible, when the remaining part of the partition is equipped with a bar counter or an arch is made in it. It is also appropriate to completely dismantle the wall and replace it with sliding systems or columns.
The photo shows the redevelopment of a two-room Khrushchev with a combined kitchen-living room.
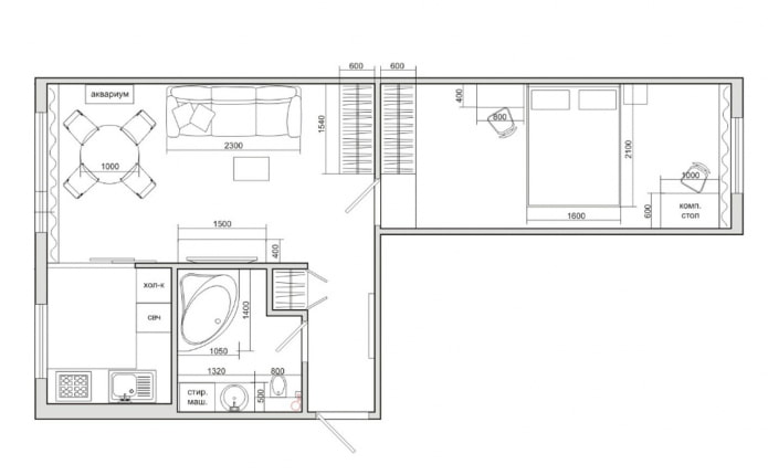
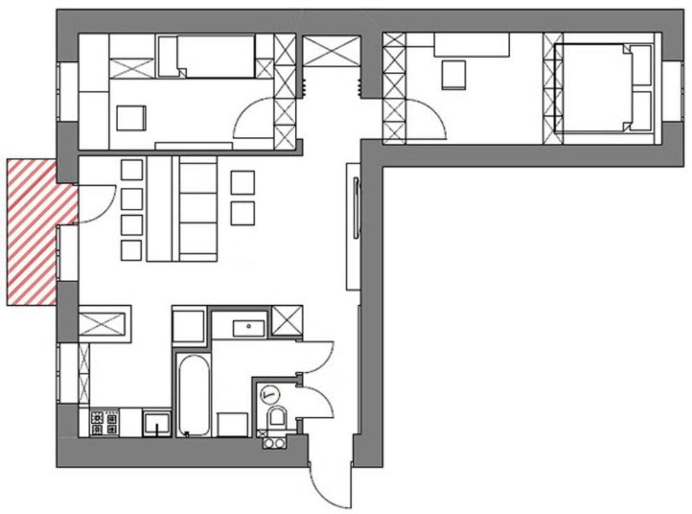
Redevelopment of a corner two-room Khrushchev
A corner two-room apartment can actually be turned into a three-ruble note. For example, to increase the footage of the bathroom, and divide the living room into two zones and expand one of them with a pantry.This will create two separate bedrooms with windows.
In the photo there is a variant of the redevelopment of the corner Khrushchev kopeck piece with a combined kitchen and hall.
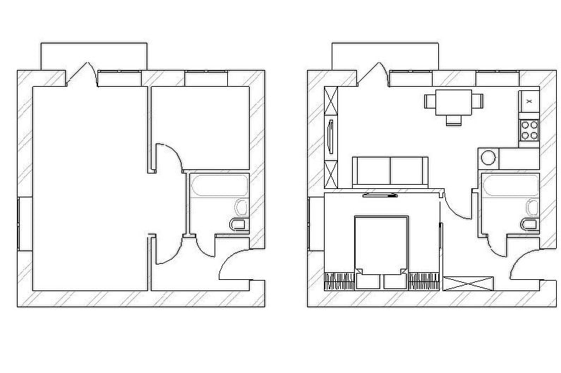
Examples for Khrushchev books
Alteration of the Khrushchev book is considered problematic. The only way is to partially dismantle the wall between the hallway and the living room. The enlarged corridor will have doors from the bedroom and hall, and the kitchen will remain untouched.
There is a more labor-intensive layout when the partition between the hall and the kitchen space is demolished and a studio is formed. Sometimes the size of the living room is reduced and a small dead end is equipped in the form of a pantry or dressing room.
In the photo there is a hall isolated by sliding doors in a redesigned Khrushchev-book.
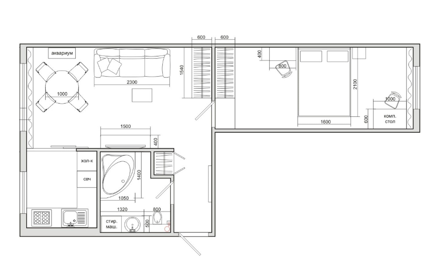
A selection for Khrushchev tram
When this type of housing came into operation, it was given the name of a trailer or tram.
The tram-type Khrushchev apartment does not undergo major changes. The bathroom and kitchen are not affected, and they are trying to clean the passage room. The planning is carried out by extending the corridor. Whether zoning of the hallway with a partition is required depends on the preference of the owners.
Housing with a new layout will roughly resemble a 2-room butterfly-style Khrushchev. The only difference is that the kitchen is not in the middle.
Redevelopment ideas for undershirts
A standard vest apartment is characterized by a symmetrical arrangement of rooms, the doors of which lead to the hallway from different sides. This layout scheme is quite good and successful.
Here, by combining the kitchen with the living room, you can create a single space. In this case, the partitions remain only in the bathroom and bedroom. If the apartment has a balcony or loggia, they are combined with one of the premises. An insulated balcony with a warm floor is equipped with a study or dressing room.
A selection of redevelopments for treshki
The main disadvantage of treshki is considered to be a toilet and a bathroom, which have a small area. Therefore, a three-room apartment will be re-planned in order to increase the footage of the sanitary unit. To do this, they combine the bathroom and toilet or expand it by part of the corridor leading to the kitchen.
The photo shows the redevelopment of a 3-room apartment in Khrushchev, made in a modern style.
The door to the kitchen is made in the living room and because of this it becomes a walk-through. It is also possible to combine the kitchen and the hall. A combined room can be divided using a bar counter.
In the photo is a three-room apartment Khrushchev with redevelopment of the combined kitchen-living room.
Alteration of a 4-room apartment
The Khrushchev building of 4 rooms is rare. Such apartments represent real luxury. A popular redevelopment is to move the kitchen to one of the rooms and delimit it into a dining segment and a work area. The first section is combined with a spacious hall, and the second is taken out into the corridor. The vacant space, which was used as a kitchen space, is converted into an office. However, according to the law, it is prohibited to place living quarters under the kitchens of the apartments located above. This rule does not apply to the owners of the Khrushchev houses on the top floor.
The next option is to combine the kitchen space with an adjoining room. The combined room will become a dining area or a spacious place for the whole family to relax.
Another solution for remodeling a 4-room apartment is to increase the size of the bathroom by using the footage of a non-residential room in the form of a corridor or hallway.
The photo shows the redevelopment of a 4-room Khrushchev building with a spacious kitchen-dining room and a hall.
Redevelopment of a bathroom in Khrushchev
Since the bathroom and toilet are small, only the most necessary plumbing fixtures can fit there. By law, it is prohibited to expand the bathroom towards the living quarters or kitchen space.The most common technique is to demolish the partition between the bathroom and toilet. A more complex redevelopment is an increase in the bathroom due to the hallway or storage room. Finishing in light colors will help to visually expand the room, and a corner shower cabin will help to optimize the space. Thus, the bathroom will accommodate all the plumbing and even create additional space for the washing machine.
In the photo there is a combined bathroom in the redevelopment of a Khrushchev-type apartment.
Photo gallery
The redevelopment of the Khrushchev building allows you to improve housing and remake it for personal tastes. By combining, enlarging or dividing rooms, it is possible to significantly increase the comfort of living.







































