When creating the concept of a design project for an apartment, it is necessary to take into account all the nuances, the main of which is the number of tenants. This parameter is important because:
- A single person or a married couple can choose a free layout and settle in an uncluttered studio apartment.
- For people who have a child, a kopeck piece with a large kitchen and spacious rooms would be the best option.
- For a family of parents and two children, it would be nice to divide the total area into four, creating a personal space for each.
- Also an apartment of 57 sq. m., with the proper approach and funding, it can become a four-room apartment.
We will consider each of the options in more detail below.
Project of a two-room apartment 57 sq. m.
The main task of the designers was to remake the two-room stalinka of the standard layout into a modern, unique studio apartment with one separate bedroom.
The project provides for the division of the studio space into three parts - a dining room, a kitchen and a living room. To transform a room into a guest bedroom, simply fold out the modular sofa.
For the project, the craftsmen chose the multifunctional products of the Ninfea company. This is how an innovative bed is located in the bedroom, which makes it possible to change the position of the armrest, thereby increasing the convenience of watching TV. Near the window, the designers put a work table, smoothly turning into a bedside table under the TV. The latter can be transformed into an elegant bookcase for literature.
The overall concept of the interior is designed in light shades. The bathroom has a special palette of colors - orange glossy tiles, which go well with pure white fixtures. The washing machine was hidden in a niche, above which they placed open shelves for accessories.
Interior of a three-ruble note 57 sq. m.
Three-room apartment of 57 sq. m. has a minimalist design. White range of shades in a small area adds volume and space. The rooms are visually enlarged, filled with light and freshness.
The highlight of the project was the panoramic window (from ceiling to floor), which was installed in place of the dismantled balcony.
The designers carried out a serious redevelopment - the kitchen was moved to the living room, and a children's room was made in its place.
The bedroom has grown in size thanks to a clever storage system - in a huge built-in wardrobe, in the armrests of the bed and even behind the curtains.
We also managed to arrange two separate bathrooms.
Interior of a 3-room apartment 57 sq. m.
Here the designers have done a great job, the three-ruble project involves a large living room, the most spacious bathroom, a separate bedroom and an isolated private area.

The restructuring of the living room affected the following aspects:
- she was moved to the back of the apartment;
- reduced the original area, in favor of the dressing room;
- equipped a fireplace with biofuel, while for decoration they put real firewood next to it.
Modern interior design does not provide for a pile of furniture and other accessories, therefore everything in the dining room is in a minimalist style - a round table and four soft chairs, decorated in white covers.
A small glass coffee table was placed in the kitchen.
The wall of the bedroom was decorated with a huge mirror that increased the space, and a beautiful darkened curtain was hung on the window.
Another interesting design move is a wall-hung storage system. It is uniform for the dining room with the hallway and allows you to conveniently place the essentials. The apartment does not have a bathroom, but there is an extended bathroom with a built-in washing machine.
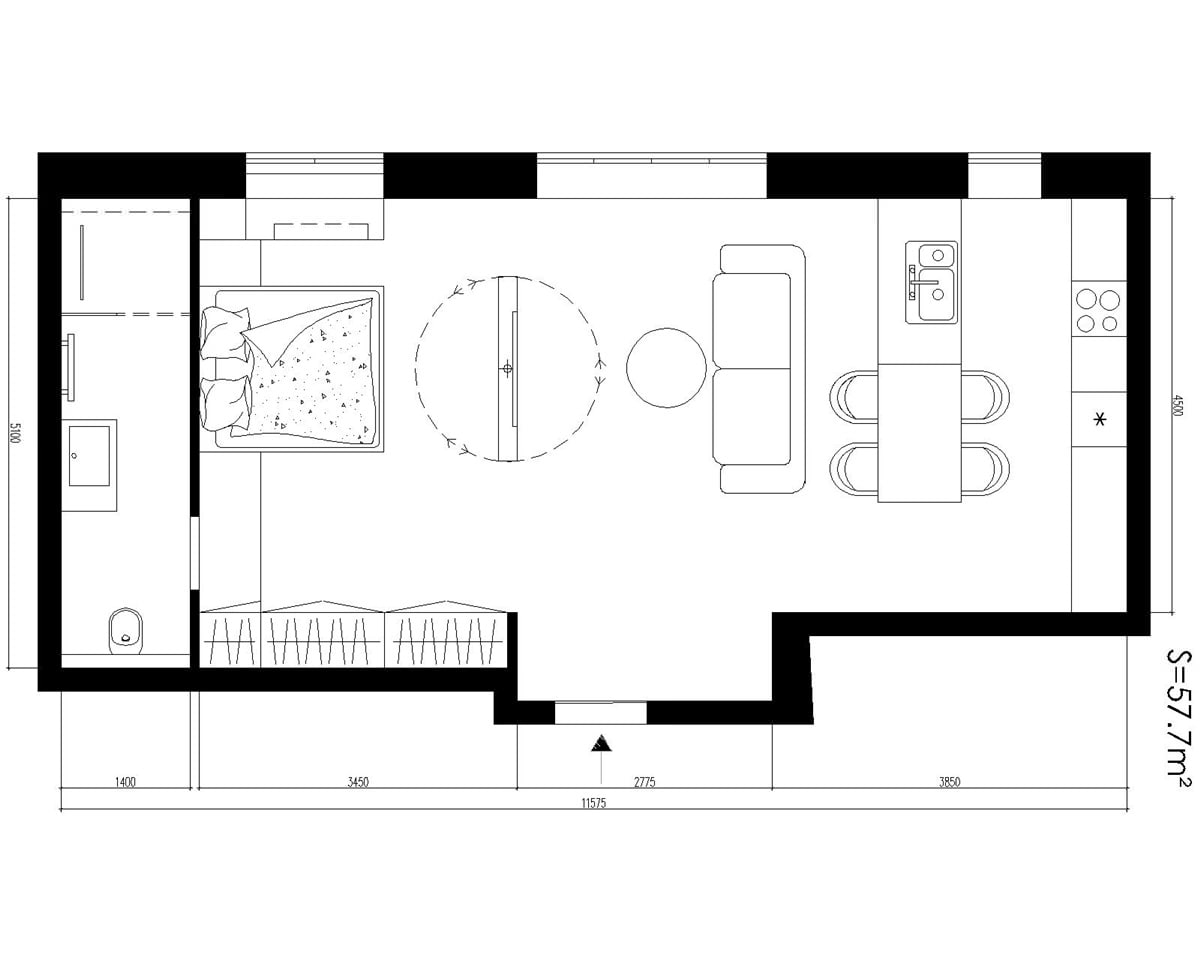
Project of a studio apartment with an area of 57 sq. m.
The studio apartment is decorated in one of the most popular styles of our time - "loft". It is dominated by strict geometric shapes, a spectacular combination of textures and colors. All housing is divided into several multifunctional zones.

The kitchen space is harmoniously combined with the dining room. It has rationally placed a linear set with a snow-white countertop, contrasting with the dark facades. Part of the working area includes a peninsula with a sink. The latter smoothly turns into a table for quick snacks and small family gatherings.
Also, the furniture of the studio apartment includes an elegant glass table and a functional sofa in coffee color.
The highlight of the project is a mirror partition rotating on its axis with spectacular illumination. It allows you to harmoniously divide the bedroom from the living room, change the viewing angle of the TV built into it, place books on the shelves, and visually increase the space.
In the bedroom, the designers have made the interior unique by creating textures on the walls that imitate brickwork. A photo of abstractions with bright illumination was placed in the bed area. One of the walls was occupied by a large built-in wardrobe.


Layout

Modern design kopeck piece 57 sq. m.
In the process of implementing a project to decorate an apartment of 57 sq. m. the architects took into account a number of requirements put forward by the owners, namely: the availability of spacious storage space (including sports equipment), a double bed, and a multifunctional working area - an office.
The first step was redevelopment, during which they got rid of the partition between the living room and the hallway. Instead, an open rack was placed there. Also removed the doors in the kitchen. Thanks to this, it turned out to correctly install the equipment.

The main color when creating a design for an apartment of 57 sq. m. has become a shade imitating natural wood. In the bedroom, turquoise tones were added to it, and in the kitchen, snow-white.
Apartment with an area of 57 sq. m. is a wide range of solutions for aesthetically pleasing, functional and modern design.




















































































