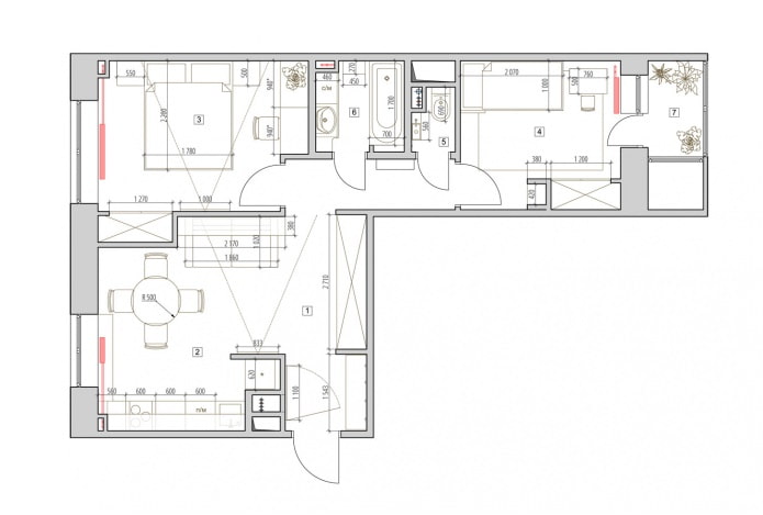
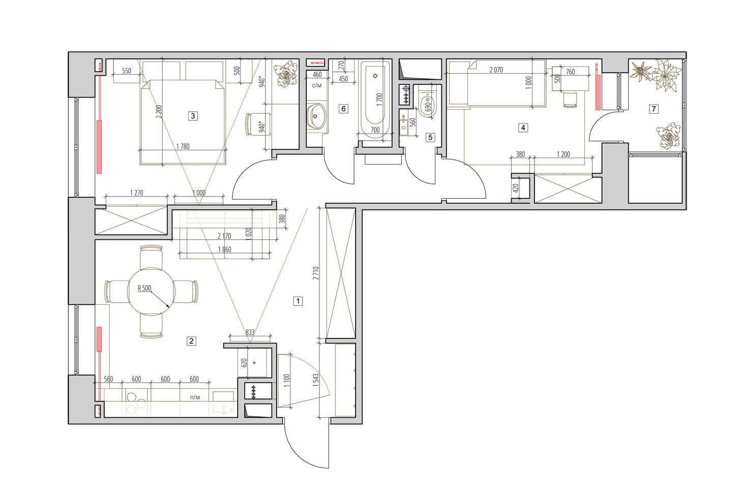
Layout
To make the apartment as comfortable as possible, the kitchen and living room were combined in a single space. The bedroom was supplemented with a small work area, and the small nursery was planned in such a way that it would be convenient for two kids at once.
The area occupied by the kitchen was slightly increased by taking the space from the bedroom. To do this, it was necessary to move the wall, which made it possible not only to expand the main room in the apartment, but also to make it more convenient: a niche for a sofa appeared in the living room, and a niche for a storage system in the bedroom, of which there should be a lot in a two-room apartment for a family with two children ... The entrance area was not fenced off from the living room in order to preserve as much open space as possible and make the hallway bright.
Kitchen-living room 14.4 sq. m.
The white color of the walls, characteristic of the Scandinavian style, is complemented in the interior by a complex blue with green tones. Blue wood “blinds” on the storage system echo the blue backsplash of the kitchen area, adding a play of textures to the play of color.
The dining chairs are upholstered in faded blue, and the bright blue stripes on the Roman shades add a touch of nautical romance. The design of the apartment does not look cold, despite the abundance of blue tones. They are softened by the delicate beige shade of the sofa upholstery and the warm creamy tone of the kitchen set. An unpainted wooden table and the same chair legs add warmth to the home.
The floor in the living room, combined with the kitchen, is covered with a material with unique properties - quartz vinyl. Tiles made from it are very resistant to abrasion, since almost 70% consists of sand, and not simple, but quartz. This tile looks as beautiful as wood, but it will last much longer.
The walls are finished with washable matt paint, as the designers planned from the very beginning that only very practical finishing materials would be used in the apartment for a family with two children.
A white brick wall came from the loft to the apartment. A sofa was placed next to it, and a backlight was built into the bottom of the storage system suspended above it for easy reading.
It was not possible to allocate a place for a dressing room, but instead, designers placed spacious wardrobes in each room, as well as additional storage space. Almost all wardrobes are built-in, and reach the ceiling - so much more things can fit in them. Despite their significant dimensions, the cabinets do not clutter up the area - decorative techniques have turned them into interior decoration.
Bedroom 13 sq. m.
The finishing materials of the bedroom are sustained in an ecological manner: these are the colors of nature, different shades of greenery, and a print on the wallpaper that brings you into the atmosphere of a fairy forest, and even a decorative element - a white deer head over the head of the bed.
The curbstones on both sides of the bed work on the general idea - these are wooden hemp, as if they had just been delivered from the forest. They both decorate the bedroom and give it a natural charm, and do a good job with the functions of bedside tables. Another decoration is a chair.This is a replica of the Eames design piece.
The bedroom is lit by ceiling lights, and there are additionally sconces at the head of the bed. The floor was covered with wood - parquet board.
Children's room 9.5 sq. m.
An important place in a two-room apartment for a family with two children is occupied by the nursery. This is not the largest, but perhaps the brightest room. Here, natural shades give way to rich reds and blues. This color will be pleasant for both the boy and the girl. But the expressive blue and red ensemble was not without ecological notes: owls-pillows on the sofa, decorative paintings on the walls soften some of the harshness of bright colors.
For the nursery, we chose fabrics made from natural fibers, and a parquet board was laid on the floor. The nursery is illuminated by spotlights built into the ceiling.
The design of the apartment is 52 sq. m. there are many storage places in all rooms, and the nursery is no exception. In addition to a wardrobe, it has a shelving unit, and, in addition, large drawers are arranged under the bed, which can be easily rolled out.
Bathroom 3.2 sq. m. + bathroom 1 sq. m.
The bathroom is designed in a combination of white and sand - a perfect combination that gives rise to a feeling of cleanliness and comfort. In a small room of the toilet there was a place for a narrow but long sink. The main part of the furniture had to be made according to the drawings of designers to order, since the size of the room did not allow choosing ready-made sets.

















