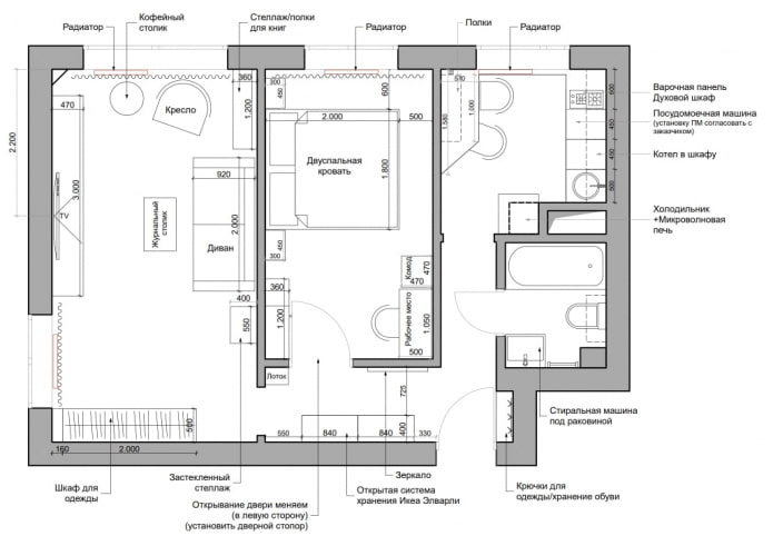
Functional odnushka in gentle colors
The area of the apartment is 28 sq.m., designer Elzhbeta Chegarova. Khrushchev is intended for an elderly couple. To make the kitchen more spacious, combined with the room, delimited by a partition.
The useless corridor was turned into niche for the refrigerator and built-in wardrobe by erecting a wall. The living area has been transformed into a living room bedroom where there was a place for two sofas, an office, a TV zone and a storage system.
Toilet and bathroom combined, thanks to which a shower stall, a washing machine and a cupboard fit into the bathroom.
More details about the project you can look here.
Two-room Khrushchev with kitchen 5 sq.m.
The area of the apartment is 40 sq.m., the owners are a young couple. Budget - RUB 800... Designer Marina Merenkova did not change the layout, but arranged the small kitchen so that there was enough space for everything you need. Her main feature - table top headset, passing into the window silland then to the dining table.
The living room is divided into several zones:
- there is a reading corner with a mini-library,
- a place to relax and watch TV,
- wardrobe for clothes and general items.
The bedroom, decorated in deep blue tones, includes not only a place to sleep, but also a mini-study, as well as a compact wardrobe.
The communications in the bathroom had to be moved to fit washing machine under the sink, a sanitary closet and a full bath.
Full description of the project look here.
From odnushka to eurodvushka
The apartment occupies only 34 square meters, but in terms of functionality it is not inferior to a full-fledged two-room apartment. The owner of the small size is a young girl marketer.
Buro Brainstorm's designers have combined the kitchen and part of the room to create a comfortable cooking area and spacious dining area, separated by a partition.
A full-size bed was placed in the bedroom with access to the balcony and built in a spacious wardrobe, with the help of which it was possible to inscribe the crossbar beam.
Having issued a bathroom, the designers achieved the almost impossible by fitting a countertop with an overhead sink and a washing machine, a toilet and a bathroom. The space is expanded by a wall cabinet with mirrored doors.
New apartment from the "killed" kopeck piece
The area of the apartment is 43 sq. m. Designer Anastasia Kalistova removed all partitions, re-forming the space. It turned out to be bright, modern housing for young people. The former pantry converted into dressing room, and the kitchen was made more spacious by combining with the living room.
The room was equipped with a dining room and a TV area with a seating area. Interior feature – accent wallpainted in a turquoise shade. White wardrobe - built-in.
The bedroom is designed in a calm color scheme, has no unnecessary furniture and decor. Her main decoration – moldings on the wallsthat add elegance to the ambience.
The area of the bathroom was increased due to the corridor. The interior is thought out to the smallest detail: every centimeter is involved in the bathroom.
Detailed project description look here.
Three-room Khrushchev with its own design
The area of the apartment is 53 sq.m. A young married couple with a child managed to create a functional and stylish interior without resorting to a designer, but accepting help from various specialists during the renovation.
A small kitchen was combined with one of the rooms, receiving a luxurious dining room, and at the expense of the corridor, a guest bathroom and a dressing room were equipped.
The bedroom is only 10 sq.m.but to add light and space, the owners widened the window and glazed the balcony door. There is also a small wardrobe in the room.
Children's room in warm colors includes several functional areas: bedroom, playroom, study and relaxation (folding chair turns into a bed). The corridor is equipped with floor units and storage cabinets.
The main bathroom has everything you need: a bath, a sink, a washing machine, a boiler and a toilet. The guest toilet also has a wall-mounted sink. The open balcony is decorated with a place for tea drinking.
Eurotrash with a spacious kitchen-living room
The apartment has an area of 54 sq.m. there is a young married couple and a child. The designers of Buro Brainstorm have transformed the old Khrushchev, removing the partition between the kitchen and the room, and allotting the bedroom and the nursery to 9 sq. M.
The kitchen sink was moved to the window, the oven was raised by 120 cm, and the refrigerator was built into the closet... The dining area was highlighted with parquet, forming a cozy dining room with a sofa, table and chairs.
Small bedroom does not look cramped, since the walls are almost free, and the window opening is widened. And the furniture is just a bed and a wardrobe, and the windowsill serves as a reading corner.
The bright children's room includes bed-house, a folding chair, a chest of drawers and a table for classes. The wardrobe is recessed into a niche. Thanks to the neutral color scheme, the setting can be easily changed as the boy grows up.
The main feature of the bathroom - double sink for both parents and child. The washing machine is located above floor level and hidden behind a partition. The apartment also has a guest bathroom and a dressing room at the end of the corridor.
Detailed description see the link.
Repair of an old kopeck piece in two months
The area of Khrushchev is 45 sq.m., the owners are a young couple with a cat. Designer Evgenia Matveenko from the FlatsDesign bureau expanded the kitchen by combining it with a room, equipped a dressing room and enlarged a bathroom. The budget was 1 million rubles.
To make repairs faster, the floor was leveled with a dry method, and partitions were built from plasterboard... It acts as a separator between the kitchen and living area bar counter... The refrigerator is hidden in a niche.
One of the walls of the room is occupied by a mirrored wardrobe, visually increasing the space.
The bedroom has podium bed with drawers. The second half of the room is occupied by a dressing room - this is how the designer expanded the former pantry.
The bathroom was increased due to the corridor. Inside, they placed a full bath, a toilet and laconic floor stands for a sink and a washing machine.
Detailed project description see the link.
The appearance of an apartment, its comfort and functionality do not always depend on its area and ceiling height. Even dilapidated housing can be transformed, thereby beautifying your life and making your life simpler and more enjoyable.






























































