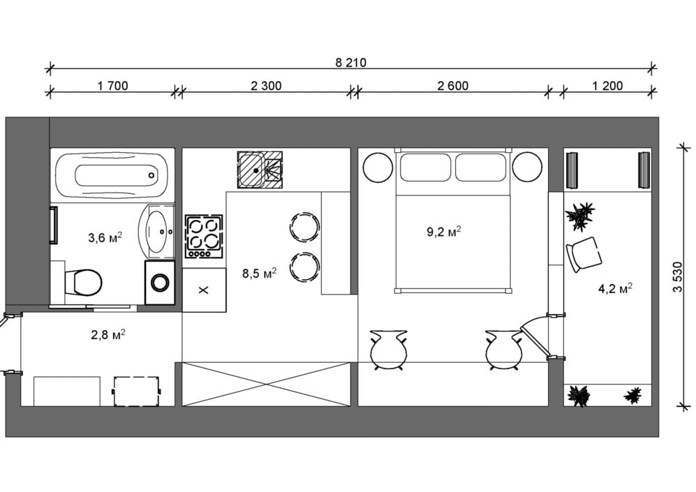
There is a lot of light, air and free space, despite the small area. At the same time, everything is very functional - there is everything you need in modern housing, enough storage space, both comfort and coziness are provided.
Style
In general, the interior style of a studio apartment is 24 sq. m. can be defined as modern, combining features loft and Scandinavian style. From the latter, here is white as the main one, natural materials in decoration, a lot of light and air. The loft is represented by brickwork, lighting fixtures above the bar that separates the living and kitchen areas, and individual pieces of furniture in this style.
Color
White was chosen for the design of a studio apartment of 24 sq. m. as the main one. This allows you to get a light interior that seems more voluminous than it corresponds to the occupied area. Blue and yellow are a harmonious color pair that allows you to place semantic accents and refresh the atmosphere.
Finishing
The floor covering in each of the zones is different - this is due not only to the need to highlight visually functional zones, but also for practical reasons. The most walk-through part of the apartment, the entrance hall, the kitchen and the bathroom received floor tiles in blue and yellow tones, decorated with Scandinavian patterns.
The sleeping area has self-leveling floors, smooth and shiny, and the lounge area on the balcony is highlighted with porcelain stoneware flooring, imitating old painted boards. A unifying element in the interior of a studio apartment of 24 sq. m. steel walls: brickwork looks quite brutal, but the white color softens its perception. Suspended ceiling, of the same height and color throughout the room.
The bathroom is decorated very brightly and decoratively: patterned tiles on the floor, painted blue and treated with a special composition to give moisture resistance to the lining up to half the height, white walls to the ceiling and a bright yellow door make the room joyful and sunny.
Furniture
Since space is limited, there is not much furniture - only the bare essentials. Almost all items were developed by designers specifically for this apartment and were made to order. The only exceptions are the owners' favorite chairs, which successfully fit into the new interior.
Design studio apartment 24 sq. m. provides for the presence of a sufficient number of storage systems - in the entrance area there is a wardrobe and a console, which was brought to the new house by its owners. After the restoration, it took its place and serves as a shelf for shoes and a table for handbags, keys, telephones and other items.
The lounge area on the balcony has a small sofa with drawers, which will accommodate a lot of everything you need on the farm, as well as an open rack. To prevent the interior of the apartment from looking like a pile of furniture, the designers abandoned the upper row of kitchen cabinets, replacing them with open white shelves, almost invisible against the background of the wall.
A small refrigerator is hidden under the countertop of the work area. The underframe under the sink in the bathroom is closed by two doors, behind which are hidden on one side - a washing machine, and on the other - stocks of cleaning and detergents necessary for the household.
Lighting
The main device in the lighting design of the apartment is a chandelier located in the sleeping area.Its soft diffused light evenly illuminates the entire apartment. In addition, next to the bed on both sides there are bedside lamps, opposite the wall - a desk with a table lamp, the balcony seating area has two sconces above the sofa.
The working part of the kitchen is illuminated by additional lamps, and suspensions descending from the ceiling along the dividing line between the sleeping and kitchen areas flood the bar counter with light. An interesting decorative accent in the interior of a studio apartment of 24 sq. m. introduces a lamp in the entrance area: this is the head of a dragon, from the mouth of which hangs a cord with an electric lamp.
The bathroom is illuminated with spotlights, and, in addition, it has illumination of the washbasin area, which is not only functional, but also decorative.
Decor
Bright color combinations on a white background are a sufficient decoration in themselves, so there are few additional decorative elements - a clock on the wall and a few posters. Fresh greens in pots refreshes the interior. The textiles are all natural - both bedspreads and curtains. There will be no thick curtains in the apartment so that they do not block the light and do not interfere with free air exchange.







