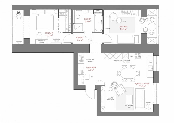
Layout
Since the premises initially had a convenient layout, the changes that had to be made were minor. The necessary isolated rooms for the parents and the child were already in place, in addition, spacious balconies were adjacent to them. The location of the bathroom between the rooms is also very convenient.
To increase the area of the rooms, balconies were attached to them, removing window and door blocks and additionally insulating them. The footage of both rooms is practically the same, one turned into a bedroom for the parents, the other for the child.
Hallway
The entrance area is practically not separated from the common living space, which houses the kitchen block, dining room and living area. To the left of the front door, a full-height wall is occupied by a built-in storage system.
The central doors are mirrored and the edges are white. The inset of dark walnut veneer encircling the wardrobe gives the whole composition elegance and originality. To the right of the entrance is a small console table, on which you can put your purse or gloves. The table is made according to the sketches of the designers. The wall above it is decorated with Barcelona design mirrors.
Kitchen-living room
After all the redevelopments in the interior of a 3-room apartment of 80 sq. m. a large common area was formed, in which three functional areas were conveniently located at once: kitchen, dining and living room. At the same time, the functionality of all zones meets the highest requirements.
Thus, the cooking area has three separate units: a large storage system, a work surface with an integrated electric hob and a work surface with a built-in sink. In the storage system, two of the four high columns are reserved for food, dishes and other necessary kitchen utensils, in two more household appliances are hidden - a refrigerator, an oven, a microwave.
There is a comfortable work surface between the storage system and the window. A hob is built into the wood worktop, the white glossy backsplash visually makes the kitchen brighter and more spacious. Another work area is located under the window; it has a stone countertop with a sink that goes into the window sill. A washing machine and dishwasher are hidden below.
To compensate for the difference in the height of the window sill and work surfaces, worktops of different thicknesses were used: a wooden one made of oak is 50 mm thick, and a black quartz one is 20 mm thick.
The modern design of a three-room apartment of 80 sq. m. the chandelier in the dining area has become a bright, distinctive accent. She was placed there at the request of the apartment owners. To balance the severity of a classic chandelier, three contemporary Shot Glass lamps were placed around. This unusual solution also changes the perception of a very traditional and somewhat ponderous dining group, making it easier.
The living area is simple and elegant: the beige and gray Nimo Barcelona Design sofa is located along the window, opposite it is the TV area: the structure of open shelves and a large TV niche stylistically echoes the storage system of the entrance area.
Tables for magazines from the Zara home collection serve as a decorative accent to the composition of the living room, and a bright mustard armchair with an elegant shape.The classic white wall of the living room, decorated with plaster moldings and a shelf mounted on consoles, echoes the style of the dining room and gently contrasts with the modern shapes of the furniture, creating an interesting decorative effect.
Bedroom
In the interior of the bedroom, the bed Dantone hom, made in a classic style, has a high headboard and is surrounded on both sides by soft beige curtains: on the right they cover the working area on the balcony, on the left - the dressing room, which, in order to save space, was not separated by a wall or stationary partition. The curtains are made of dense material, the eyelets easily slide along the metal rods.
A slight asymmetry is introduced by the bedside tables - one of them is made of wood and has a simple rectangular shape, the other - Garda Decor - round, silver, on one leg. Console dressing table - Family Hall.
The former balcony has turned into a study: on the right there is a computer desk, next to it is a soft comfortable chair, on the left is a bookcase, the upper part of which can also be used as a table.
To make the design of the apartment look solid, it is necessary to repeat not only colors, but also texture in the decoration of the premises. The balcony wall under the window is decorated with bricks and painted white, just like the wall with windows in the kitchen.
Children
In the decoration of the child's room, light pastel colors were used, which made it very cozy. The furniture is also light. The carpet on the floor is almost the same as in the living room, they differ only in color.
Moldings along the ceiling and on one of the walls maintain the classic style of the apartment. The geometric pattern on the Cole & Son Whimsical wallpaper on the wall near and opposite the couch is softened by delicate colors. The other two walls are painted.
A spacious semi-antique oak wardrobe echoes the space under the windowsill with aged planks. The style of the white bookshelf is the same as in the parents' bedroom and is custom made. All these details organically fit into the overall style of the interior of a 3-room apartment of 80 sq. m.
The former balcony, attached to the room, performs two functions at once: white storage systems were placed on the sides, and a play area was formed in the center. Large knitted poufs and two low tables - here you can not only play, but also draw and sculpt.
To keep it warm in the play area, a “warm floor” system was used in the balcony area. The center of the play area is illuminated by five Cosmorelax Colored lamps hanging from the ceiling on multi-colored cords.
Bathroom
The bathroom is the most luxurious room in the apartment. It has an oriental touch in its design due to the use of blue Moroccan tiles of an unusual shape "arabesque", made to order and crystal lamps: a round suspension in the wash area and two semicircular wall sconces above the bath bowl.
The ceiling and walls are covered with Little Greene Brighton paint. The suspended wooden cabinet, into which the sink is "inscribed", was also made to order. The wash area is decorated with a round Fratelli Barri Palermo mirror in a silver frame.



















