The style has many directions: American country, Russian country style, Provence and others. Despite some differences, it is possible to distinguish features common to all: the use of wooden beams on the ceiling, forged metal elements, simple patterns of fabrics (cage, strip). Another unifying detail: a fireplace as the main decoration of the interior.
Redevelopment
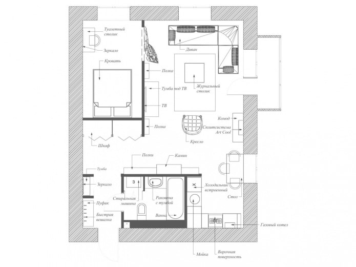
The layout of the apartment was not very successful: a small kitchen and a narrow unlit corridor interfered with the creation of the atmosphere of a country house, so the designers decided to remove the partitions and combine the living room and kitchen in one volume. To accommodate a large storage system in the entrance area, the door leading to the bedroom was slightly moved.
Color
The main color of the country-style apartment design has become a calm beige shade, complemented by the natural color of the tree. The walls and ceiling are painted in beige tones, wood is used on the floor, in furniture and in the decorative finishing of walls and ceilings.
Another complementary color is a green grassy hue. It is present in the decoration of furniture, in curtains, in bedding. The kitchen facades are also green - this is a traditional country solution.
Furniture
To make the furniture exactly match the style, some of the necessary items were made according to the designers' sketches. This is how the cabinet for spices and dried herbs appeared, the coffee table acquired a ceramic table top made of ornamented tiles, and the storage system in the entrance area exactly fit into the space allotted for it. Furniture for the kitchen was ordered from Maria, the bed was a budget option from IKEA.
Decor
The main decorative elements in the project are natural fabrics with a check pattern, which is most characteristic of the country style. In addition, decorative bricks were used in the decoration of the hallway, and patterned ceramic tiles were used in the bathroom and in the kitchen. Additionally, the apartment was decorated with bunches of dry grass and wrought metal elements.
Bathroom



















