Layouts
Currently, there are not only standard solutions, but also non-standard planning approaches, which include a circular, corner apartment or a type of housing, like a Czech woman, a butterfly or a vest.
The most important aspect in the design of an apartment is the creation of a competent project. The layout may not always meet the needs of the owners, therefore, in this case, it is often subjected to radical modification.
It is much easier to allocate space to separate functional areas in an open-plan dwelling. Easy to repair and move walls, are stalinkas in a brick house, Khrushchev and brezhnevka in a panel house with monolithic reinforced concrete walls are more complex redevelopment.
One-room apartment 50 sq. m.
For the correct choice of the most favorable design method, first of all, they take into account all the features of a one-room apartment, its specific layout, the presence of niches, protrusions, the placement of windows, etc.
This 50 square footage is quite solid for a one-room dwelling. Such a space can be equipped with a separate corner in the form of a quiet and cozy bedroom located in the farthest corner. For zoning, it is better to use lightweight or transparent partitions, instead of a solid wall that takes up the usable area.
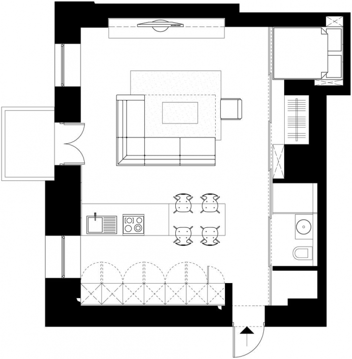
The photo shows the design of a one-room apartment of 50 squares with a living room combined with a kitchen.
Such a spacious and comfortable apartment of 50 sq., Is perfect for one person or a young married couple. For the design of a one-room apartment, you can choose a wide variety of interior solutions, for example, arrange a sleeping place in a niche, and use the rest of the area for a combined kitchen-living room, thus achieving an incredibly practical design.
One bedroom apartment 50 m2
In this apartment, for the correct distribution of the area and the functional purpose of the premises, you should pay attention to who will live in the kopeck piece in the future. For example, for a family with a child, it is imperative to equip a children's room, and for one adult, a layout with a combined kitchen-living room and a separate bedroom will be appropriate.
In the photo there is a combined kitchen-living room in the design of a euro-apartment of 50 square meters.
Most of the superior apartments of euro-two houses have a balcony or loggia, which becomes an excellent additional place that can be combined with a room for equipping a study or recreation area.
Living space with a corner layout can have no less original design. A corner room with two window openings can be easily divided into two sections using various pieces of furniture or partitions.
Studio apartment of 50 meters
For those who prefer spaciousness and open space, a studio apartment will be the best option for living. Such a seemingly not too large room, with the help of various partitions, can be visually transformed into a fairly large living space.
One of the most popular planning solutions is the division of the studio into a sleeping area and a living room with a kitchen, dining room, wardrobe and bathroom. To separate a place for sleeping, special partitions, screens or arches are mainly used.
It is better to furnish a studio apartment with lighter compact furniture or choose transforming designs. As a zoning, you can also use different elements of furniture, in the form of a rack, wardrobe or bar counter, as well as divide the space using lighting, contrasting finishes, multi-level floors or multi-level ceilings.
Thanks to zoning, it is possible to achieve a more practical and thoughtful design, calculated for a comfortable stay of two people.
The photo shows the design of a studio apartment of 50 squares, made in a modern style.
Photos of the interior of the rooms
Photo examples of the decoration of the premises.
Kitchen
To equip a small kitchen, which is most often found in kopeck pieces of 50 sq., You should not choose too bulky furniture and use a large number of decorative elements. The room should have light shades, glossy or mirror surfaces and light textiles that transmit light well.
A more spacious kitchen space can be decorated with an overall set and a roomy table for the whole family. This room freely accommodates a stove, refrigerator, sink and many cabinets for food or dishes.
In the presence of a walk-through kitchen, it is important to correctly think over the intersection zones so that movement in the space is as comfortable as possible. The workplace in such a room, it is better to separate it with a dining table or bar counter.
Living room
Particular attention is paid to the design of the hall, to the furnishings. Mandatory attributes in the living room interior are a sofa with armchairs or poufs, a coffee table and a TV. The cladding is dominated by light colors combined with bright interior elements such as pillows and other textiles. Window openings are decorated with lighter curtains, creating the feeling of panoramic glazing. A small carpet and houseplants will help to give the atmosphere maximum comfort.
The photo shows the interior of the living room in the design of a two-room apartment of 50 sq. m.
Bedroom
In such rooms, the bed generally has a classic arrangement with the headboard against one of the walls. To save space, lockers or open shelves are placed above the bed. When equipping a work area, it is better to choose a space near a window, due to the large amount of natural light.
In apartments, such as Khrushchev, the bedroom is elongated and narrow in shape and an area of about 12 square meters. It is advisable to decorate such a room in warm or light pastel colors, for example, use beige or white wall decoration and a light wooden floor.
Bathroom and toilet
Most often in apartments of 50 sq., There is a combined bathroom, which is notable for its small size. For the design of this room, a small sink, toilet bowl, narrow bathtub or a compact and multifunctional shower cabin will be especially appropriate. The rest of the space is arranged using neat drawers or bedside tables for various things.
If there is a bathroom, the place under it will be equipped with an additional storage system with sliding doors. To maximize space conservation, the washing machine is installed in a niche, masked with special panels or hidden in a curbstone.

The photo shows a small combined bathroom in the design of an apartment with an area of 50 square meters.
In the design of the bathroom, lighter tiles with contrasting accents are most often used, large mirrors are placed and high-quality lighting is used to visually increase the space.
The photo shows the design of the bathroom, made in gray tones in an apartment of 50 squares.
Hallway and corridor
The design of the hallway in such an apartment mainly has wall decoration in white, beige, cream, sand and other light colors and is distinguished by a sufficient amount of lighting.
To visually increase the height of the ceiling, choose suspended structures equipped with hidden lighting.
It is better to use smaller prints as patterns on facing materials. An excellent solution would be to install a sliding wardrobe with mirrored doors or furniture that merges with the surface of the walls to create the effect of a single space.
In the photo there is a design of an apartment of 50 sq. with an entrance hall decorated with a built-in mirrored wardrobe.
Wardrobe
The main purpose of a dressing room with a small area is the systematic storage of things in large quantities. Most often, an ordinary pantry is converted into a given room, equipping it with thoughtful storage systems. It is desirable that the design of even such a small space does not stand out from the general style of apartment decoration.
Children
A separate nursery mainly occupies the smaller of the rooms, a kopeck piece of 50 sq. To save usable space, the room is complemented by a dressing room and other systems for things and toys. The room also has a work area with a writing or computer desk, chair, various bookshelves or niches, and a sports corner.
A nursery for two children is decorated with a bunk bed or two separate structures located along the walls. For cladding, they prefer a calmer blue, green, beige or olive color palette and apply colorful accents, for example, in the form of photo wallpaper.
In the photo, the interior of the nursery for a girl in the design of a kopeck piece 50 square meters.
Office and work area
In a separate office in the design there is a comfortable table, a comfortable chair, cabinets, shelves and various shelves for documents, papers and other things. When arranging a working area, combined with one of the rooms, it is appropriate to separate it from the rest of the space using a partition, curtains, screens or highlighting due to contrasting wall decoration. Also, a rather convenient option is to equip a mini-cabinet in a closet or on a combined balcony.
Design Tips
A few practical tips:
- In such a living space, it is not advisable to use a center arrangement of furniture items. It is better to place them around the perimeter or use free corners. In this way, substantial space savings are created.
- As lighting, it will be especially appropriate to use several levels of lamps. You should choose not too bulky chandeliers or compact spotlights.
- To add even more light to the room, you can install a cabinet with mirrored doors or construct a ceiling with a glossy surface.
- Additional space savings will be achieved through built-in household appliances. In a small space, it is more correct to use technical and electronic items that create as little noise as possible.
In the photo there is a design of a studio apartment of 50 sq., Made in high-tech style.
Apartment design in various styles
The apartment is in a Scandinavian style, it assumes a soft airy pastel shades in combination with bright accessories and textiles. The main colors of the coloristic composition are considered to be white tones, which harmonize very favorably with wooden furniture, which is distinguished by a certain laconicism.
The photo shows the interior of a combined kitchen-living room in the design of an apartment of 50 squares in a loft style.
Minimalism is characterized by special asceticism and functionality, which welcomes simple geometric shapes and restrained decoration. Such a design solution, due to built-in pieces of furniture, a large amount of light, minimal decor, creates a feeling of freedom, lightness and airiness in the room.
In the design of Provence, it is appropriate to use a delicate, slightly burnt-out palette, which endows the atmosphere with real warmth and comfort. Rough plaster on the walls, vintage frayed furniture and various textiles with floral prints are common here.
The photo shows the design of the hall in a modern style in a two-room apartment of 50 sq. m.
The classic interior has a solid, elegant and at the same time quite functional design. The room contains furniture made from natural solid wood, luxurious textiles and noble shades. For a more harmonious look, in a classic-style apartment, modern technology is hidden in drawers, special blocks or niches.
Photo gallery
An apartment of 50 squares, thanks to the competent design and design, is able to turn into a spacious and comfortable housing that meets all the requirements.




































































































