
Design of a two-room apartment 43 sq. m. has one feature that sets it apart from a number of similar projects: with just one click on the iPad screen, it can be turned from business to romantic or from work to relaxed. This is achieved with the help of a backlight, arranged in a special way, which is controlled by the iPad.

The kitchen is located in an unusual place - almost at the very entrance to the apartment. The kitchen cabinet line is white and the backsplash is contrasting black. Both above and below the line of the kitchen unit there is a backlight.



Main room as provided design of a two-room apartment of 43 sq. m. occupy a living and dining area. The latter is located closer to the kitchen, and near the window there is a comfortable sofa and a huge TV on the wall opposite from it.


The table is a bar counter surrounded by high chairs and stools. The wall next to it is with a secret: this is a huge storage system in which niches are provided: a table-counter rests against one, and a sofa comfortably settled into the other. They are also backlit.


Design of a two-room apartment 43 sq. m. provides for additional zoning for the dining and living areas using a lighting line running along the ceiling. Another line adjoins perpendicularly to this line, forming a huge letter "T" - this is the source of light responsible for changing the mood of the interior.




The color of this lighting can be controlled directly from the tablet, and, depending on the selected range, the room turns into a cozy nest, a comfortable workplace or a party area.



Bedroom.



Bathroom.





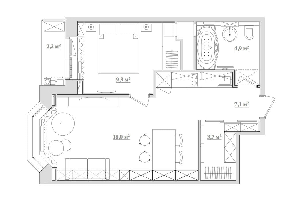
Layout of a two-room apartment of 43 sq. m.
