Layouts 9 m2
Before starting the repair, it is required to draw up a large-scale plan of the room, indicating the width of doorways, aisles and the arrangement of furniture with other interior elements.
The most time-consuming and difficult task is the installation of doors and installation of windows. If the window block is small, it is advisable to maximize the opening as much as possible. Thus, more natural light will penetrate into the bedroom and the atmosphere will become brighter.
Also, an important aspect in the interior of a small bedroom of 9 sq m is the placement of the doorway. If the room is square, the door should not be centered on the wall. It would be more appropriate to move it about 60 centimeters from the corner. So you can determine the place on which the bed will stand. The resulting free space, which has a width of about 60 cm, is appropriate to equip with a chest of drawers, wardrobe or table. In a rectangular room, the doorway is located in the middle of an elongated wall. Due to this, the room is divided into two sections, and an excellent opportunity to create an interesting and cozy design is provided.
In a cramped apartment, expanding the space will allow combining a bedroom with a balcony. The loggia is insulated as much as possible, equipped with modern double-glazed windows and thereby turns it into a full-fledged functional area that increases the usable area in the bedroom.
In a studio apartment, the bedroom is combined with the living room. For zoning, the place of rest and sleep is separated with a canopy, screen, high cabinet or partition.
In the photo there is a bedroom with an area of 9 square meters, combined with a balcony.
The layout of a narrow room can be corrected by visual balancing. To do this, a long wall is pasted over with photo wallpaper with a three-dimensional perspective image, and a sliding wardrobe with a glossy facade is installed along the opposite wall plane. It is appropriate to decorate short walls with wallpaper with a horizontal print or put a wide rack with open shelves.
A small room of 9 square meters can also have a non-standard layout. The attic rooms in the house are often distinguished by an unusual shape. Such bedrooms involve the use of interesting furniture in the form of a round, oval and triangular bed, dressers or wardrobes with beveled corners. Such a solution not only makes the environment more comfortable and convenient, but also gives it a unique uniqueness.
The photo shows the design of a small bedroom of 9 square meters with a non-standard layout.
How to furnish a bedroom?
The interior of a 9 sq.m bedroom should be equipped only with the necessary furniture items in the form of a bed, wardrobe, chest of drawers or dressing table. Bulky elements are replaced with transformer models, which are not only functional, but also give the atmosphere a spectacular and modern look.
If there are niches or protrusions, they are also rationally used.If there is enough free space under the windowsill, you can equip it with an additional storage system.
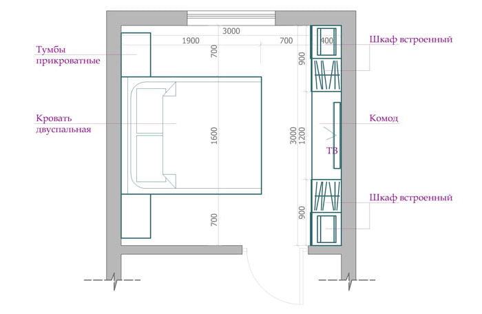
In the photo, the arrangement of furniture in a bedroom with an area of 9 square meters.
Each type of room differs in certain rules and features of the arrangement. For example, in a square room of 9 square meters, the sleeping bed can be positioned in the center so that the head of the bed is adjacent to a blank wall. Arrange bedside tables or narrow pencil cases on the sides. To save space, a podium is erected with pull-out sections and drawers for storing clothes, bed linen and other things.
In a rectangular bedroom, the bed is installed near one wall, and the opposite plane is equipped with a wardrobe. It is appropriate to organize storage of the necessary items under the bed. You can relieve the space by using a folding sofa with a berth.
In the photo there is a small bedroom of 9 squares, equipped with a small corner wardrobe with mirrored doors.
An excellent solution would be a sliding wardrobe with a glossy facade. For a small room, choose designs equipped with sliding doors. In a long and narrow bedroom of 9 square meters, a corner model or a model built into a niche is suitable.
If a TV is supposed to be installed in the room, it is better to choose a wall-mounted plasma model that takes up the minimum amount of space.
In the photo there is a bedroom with an open wardrobe separated by curtains.
How to decorate the interior?
Decorating options and finishing solutions for small bedrooms:
- Color spectrum. To achieve an increase in space, light colors allow. A similar color scheme is used in the design of large indoor surfaces. For a visual expansion of the area, you can choose white, gray, beige, pale pink and other pastel colors. In the bedroom of 9 square meters with windows facing north, they use a warm sandy palette with bright red, orange or golden splashes. The most popular are the universal and neutral grays. A contrasting combination of dark graphite with light platinum color scheme, will endow a small bedroom with sophistication and style.
- Finishing. The furnishings are noticeably transformed by finishing the floor in the form of laminate, parquet, linoleum or cork. It is recommended to give preference to lighter materials, which are several shades darker than the wall cladding. Laying the flooring diagonally will help expand the room. The most common option for wall decoration is wallpapering. Thanks to the huge variety of colors and textures, you can create an original and cozy atmosphere in the bedroom. It is best to use canvases with a small print, so the walls are visually removed. To decorate the ceiling, paint, plaster or a tensioned glossy structure in a light range are ideal. It is advisable to abandon multi-level systems that will make the space heavier. High ceilings can be decorated with wooden false beams.
- Textile. In order for more natural light to be present in the 9 square meter bedroom, you should not choose heavy blackout curtains with decorative elements. The best solution would be to decorate the window with Roman or roller blinds. Light curtains on the ceiling cornice will increase the height of the room. Colorful pillows, a blanket, a bedspread or a small bedside rug will help add brightness to the design.
- Decor. As the main accent of the room, it is appropriate to install mirrors in beautiful thin and elegant frames that match the style of the room. Green flower arrangements in moderation are excellent decor. For example, a small bedroom of 9 square meters can be decorated with one large floor plant. With limited space, they prefer wall accessories in the form of paintings, photo frames or panels.
- Lighting. Small-sized space assumes a perimeter arrangement of the luminaires. Due to this, the bedroom of 9 square meters acquires volume and a sense of spaciousness. You can complement the interior with table lamps, floor lamps or sconces. Spot lighting is suitable for individual functional segments. The room should be soft, cozy and slightly subdued light.
In the photo, ceiling and wall lighting in the interior of a bedroom of 9 square meters.
To further save useful meters in the room, doorways are equipped with sliding systems that take up a minimum of space.
In the photo there is a small bedroom of 9 square meters, made in beige colors.
Small bedroom design
Interesting examples of design in different interiors.
Ideas for a children's bedroom 9 sq.
The children's room is furnished with only the most necessary furniture and mainly natural materials are used in the decoration.
Two-level furniture structures with an upper tier as a bed and a lower floor equipped for a workplace with a compact table and storage systems will help save space.
It is better to equip the study area in the child's room near the window. As a table, use a tabletop mounted in a windowsill or install a compact and multifunctional desk with a chair.
The photo shows the design of a 9-square-sized boy's children's room.
In a 9-meter children's room with low ceilings, it is appropriate to glue wallpaper with vertical patterns or striped prints. One of the walls will be beautifully decorated with wallpaper with perspective images that expand the space and allow you to achieve an optical illusion.
To decorate a window opening, it is advisable to choose light curtains or shortened curtains in the form of Roman and roll models.
Bedroom design 9 square meters for a girl
Women's bedroom 9 sq., Performed in bright colors or more calm and delicate colors. To create additional coziness, the atmosphere is decorated with paintings, photographs, vases of flowers, souvenirs, figurines and other pleasant trinkets that become the final design elements.
The photo shows a small bedroom for a girl, designed in pastel shades.
In the girl's bedroom, lamps with a soft luminous flux are installed and beautiful textile decor is used to fill the space with new colors.
In the photo there is a black and white interior of a female bedroom of 9 sq. M.
Men's bedroom decoration
The interior design is precise and laconic. The decor has a darker or colder palette. A discreet design without unnecessary decorative items and furniture is suitable for a men's bedroom of 9 square meters.
Loft, hi-tech, modern or slightly strict minimalism are chosen as a stylistic solution.
Interior in various styles
Design ideas for a bedroom with an area of 9 squares.
Bedroom design 9 m2 in a modern style
This style is characterized by clear graphic lines and neat, practical furnishings without additional elements. Parquet, laminate or carpet in restrained colors are used to finish the floor. The surface of the walls and ceiling is decorated in beige, white and other light colors. Due to the metallic sheen, chrome fittings, polished wood and mirrored fabrics, a 9 sq.m bedroom in a modern style looks much more spacious.
The photo shows a modern design of the bedroom, connected to the loggia.
The modern interior is diluted with the help of various accessories, for example, it can be paintings, ceramic figurines or indoor plants.
Scandinavian style bedroom decoration
This style fits perfectly into a 9-meter room. Scandi interior assumes the most functional furnishings, distinguished by light colors. The decoration uses mainly a white range, which is complemented by wallpaper with unobtrusive prints, simple decorative details and cozy textiles.
The photo shows a small white bedroom in a Scandinavian style.
Examples of a bedroom of 9 sq. In a classic style
Pink, beige, cream, pistachio and snow-white palettes create an airy atmosphere in the small bedroom. Classics do not accept sharp color transitions and contrasting accents. Wooden furniture items have a graceful and curved design. Natural silk, satin fabrics or leather are selected for upholstery.
The photo shows a classic bedroom interior with an area of 9 square meters.
Photo gallery
The design of the 9 sq m bedroom, which combines a good color scheme, correct layout and practical furnishings, turns a small room into a comfortable and functional living space.












































