Arrangement Tips
During the arrangement of the kitchen, the following recommendations are taken into account:
- You need to decide on the purpose of the room and plan in advance what the 8 sq. Kitchen will be used for - only for cooking, as an additional resting place or dining room. In the second case, it may be necessary to expand the space by combining it with a living room, loggia or balcony.
- Since the room is small in size, more restrained and concise style directions should be chosen for decorating the kitchen interior.
- When choosing furniture, it is better to give preference to models with simple shapes and built-in modules. Thanks to the hidden cabinets and shelves, it will be possible to significantly save space.
- To save useful space, swing doors can be replaced with sliding systems.
- In decorating a window opening in the kitchen of 8 sq m, it is not advisable to use heavy and dense curtains, which will limit the flow of light into the room. Blinds, muslin, light curtains, Roman or roller blinds will look much better on the window.
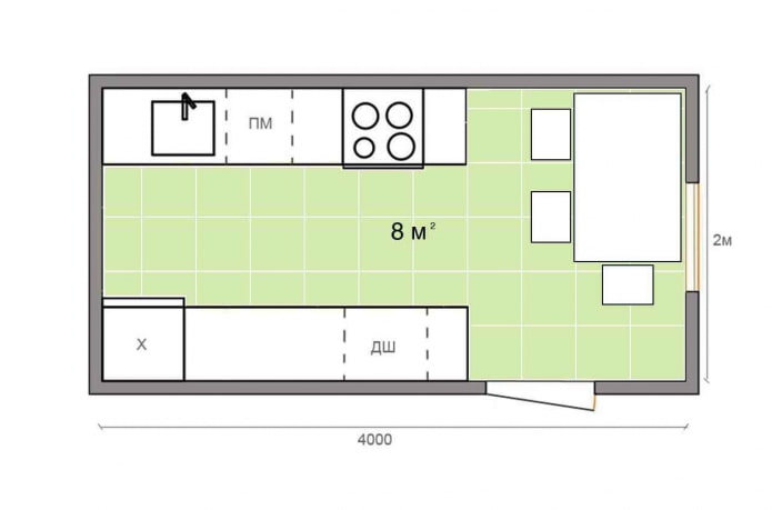
Layout 8 square meters
The kitchen space of 8 squares has its own planning features and interior conditions. For example, a square room offers more work space and has a beautiful shape, which will help to emphasize the U- or L-shaped headset. With an u-shaped layout, it is especially appropriate to combine a kitchen with a loggia or a guest room, so one side of the headset in the form of the letter p will act as a separator.
In a rectangular or elongated and narrow room, a parallel or linear arrangement is used. Regardless of the kitchen configuration of 8 sq m, it is important to design a convenient working triangle by placing the sink, stove and refrigerator at a comfortable distance from each other. Thus, the hostess will make a minimum of unnecessary movements during cooking.
The photo shows the linear layout of the kitchen with an area of 8 square meters.
A window in the kitchen of 8 sq m can become an original and useful element of the interior. To do this, they use various non-standard solutions and make the most of the window sill, for example, move the sink, equip a bar counter, an additional tabletop, or install a linear set along the window.
Color spectrum
To make the room look more spacious, the walls are painted or finished with materials in light colors. The ideal color scheme is the use of pastel beige, milky, blue, pale pink and other muted tones.
For the kitchen interior of 8 square meters, you can choose a bleached matte or glossy, warm or cold, clean or complex composite shade palette.Contrasting accents or bright decor will help to dilute the atmosphere and give it individuality.
The most obvious coloristic solution is the kitchen of 8 sq m in white colors. Such a design will maximize the space and create the effect of weightlessness in the room. In this case, it is important to take a responsible attitude to the choice of materials and textures. They should be easy to wash and clean. However, if the room is located on the south side with enough light, it is better to avoid using white as it will dazzle and irritate the eyes.
Also, the gray color deserves special attention. Neutral shades will act as an excellent backdrop for a small room of 8 square meters, and will also favorably emphasize and enhance the beauty of other companion flowers.
For an apartment with windows facing the shady side, designers do not recommend using dark colors.
In the photo, the design of a light kitchen of 8 m2 with a set of chocolate shades.
Finishing and renovation options
For the kitchen, choose a wear-resistant and practical finish:
- Floor. The best choice is to lay the floor with natural wood planks or laminate with high quality imitation. No less popular are coatings in the form of a self-leveling floor, tile or porcelain stoneware, which is not afraid of temperature extremes, mechanical stress and frequent cleaning.
- Walls. Suitable non-woven wallpaper with an unobtrusive pattern, vertical stripes or images that visually add 8 square meters to a small kitchen. An excellent solution for wall decoration will be water-based paint. During the renovation, this coating can be easily renewed at no extra cost.
- Ceiling. For a room of 8 square meters with a high ceiling, it is appropriate to install a plasterboard structure, which allows you to conveniently mount lighting devices and hide communications. A practical option that does not cause problems in maintenance is a stretch ceiling. The coating can be matte, satin or glossy with a reflective effect.
- Apron. The working area is laid out using washable tiles, moisture-resistant panels or covered with glass with an original pattern. An apron decorated with an original mosaic composition has a gorgeous look.
Not only the beauty of the interior, but also the service life of the repair depends on the correct approach to the choice of materials. The main task is to ensure that the finish does not harm the design of a small kitchen of 8 sq. M.
In the photo there is a kitchen of 8 square meters with an apron tiled with brown mosaic.
Kitchen furniture and household appliances
Examples of the most important household and furniture items.
Kitchen design 8 sq. With refrigerator
In a small room of 8 sq m, the refrigerator looks bulky. For example, to put the unit in line with the headset, you need to choose the ideal construction depth. Thus, the device will not stand out and create a single composition with kitchen cabinets.
The refrigerator will look especially harmonious in combination with tall headset modules with a built-in oven or microwave. Large items arranged in one place will not disturb the harmony of the interior.
In the photo there is a refrigerator located in a niche in the wall in the interior of the kitchen 8 sq m.
To locate the device, they actively use the right or left corner. If the wall near the window has the required width, then it is appropriate to place the unit there. In this case, it will turn out to effectively use the dead corner zone. It is important that the refrigerator does not block the window opening.
Photo of a kitchen 8 sq. With a sofa
The kitchen design of 8 sq m will perfectly complement a stylish sofa. You can save real space with compact soft corners with pull-out storage systems for kitchen utensils. If you intend to purchase a larger sofa, it is advisable to give preference to models that match the color of the headset.
In the photo there is a kitchen with an area of 8 square meters with a soft corner area.
Washing machine examples
The simplest solution is to install the washer under the countertop of the headset.Thus, the device will not take up extra space and will always be in easy access.
Another most compact way of placement is to build in a washing machine. The only drawback is that built-in appliances are more expensive than traditional ones.
Which kitchen set is right for you?
The headset should not only have a beautiful look, but also be roomy. For this, structures are often equipped up to the ceiling. Models are equipped with built-in appliances to save space and create a harmonious design.
In order to visually relieve a small kitchen of 8 sq m, it is better to install furniture that will merge with the wall decoration. A product with a glossy white or glass facade is suitable.
In the photo, a straight mini-set in white in a kitchen design of 8 sq m.
There are several schemes for the arrangement of furniture items. The minimum number of meters will be occupied by an L-shaped headset. The corner kitchen will allow you to comfortably place an oven, sink, hob, dishwasher, washing machine and even a bar counter.
A straight set fits perfectly into a narrow kitchen room of 8 sq m. The linear design is the most versatile and compact, but at the same time inconvenient from an ergonomic point of view.
In the photo there is a kitchen room of 8 square meters with a light corner set with a wooden countertop.
For arranging a small space of 8 square meters, choose multifunctional, lightweight and compact furniture in the form of folding armchairs and chairs, folding tables or movable consoles.
Lighting features
A kitchen with an area of 8 square meters is decorated with multi-level diffused lighting. For this, the room is equipped with ceiling spotlights and built-in lighting.
It is possible to visually stretch the walls due to the lamps located horizontally, devices with the luminous flux directed upwards will help to raise the ceiling.
Spot spots in the working area, LED illumination of the kitchen set, an original chandelier over the dining table or pendant lamps over the bar counter will add special appeal to the design.
In the photo, hanging ceiling lamps above the bar counter in the kitchen are 8 sq m.
How does a popular kitchen look like?
Modern trends come to the fore, which are characterized by correct geometric proportions and a small amount of decor. For those who value order and cleanliness, simple and functional minimalism will suit. Furniture with strict shapes is used in the design of the 8 sq m kitchen; the room is decorated in a discreet white, gray or black color scheme in combination with wood. A laconic kitchen set with built-in household appliances will give the room additional space, freedom and comfort.
No less popular are the classics, which are distinguished by symmetry, calm and discreet shades. The main in the classic style are details in the form of elite wooden furniture, rich textiles and decor, as well as a beige, milk or cream palette that fills an 8 square meter room with lightness and comfort.
Symmetry, subtle color palette and traditional forms in design are also suggested by neoclassicism. This style contributes to the creation of a rationalized and lightweight interior.
In the photo, a kitchen design of 8 square meters in the Provence style.
The kitchen space of 8 squares, designed in a delicate and lace Provence style, looks really airy. A similar effect is achieved due to bleached, faded and faded pastel colors. The set in the interior is decorated with carving, painting or decoupage, complements the room with all kinds of tablecloths, napkins and towels.
A small 8-meter kitchen is quite enough for a loft-style design. The room is furnished with lighter and medium-sized furniture items and a restrained decor is selected. An unusual idea would be to install a headset with a rustic facade. The natural texture of the wood acts as a harmonious accent.
Modern design ideas
If the kitchen of 8 sq m assumes the presence of a balcony, they redevelop and attach the space, turning it into a recreation area and a dining segment, or partially bring furniture, refrigerator and other appliances to the loggia. Before that, high-quality glazing and insulation of the balcony room are carried out.
In the photo there is a kitchen of 8 sq m with a window equipped with a work surface and corner cabinets.
The window and the space around the opening represent a hidden reserve that can transform and increase the functionality of an 8 sq m room. The window sill can be integrated into the worktop, a work area can be placed near the window, and narrow cabinets, hinged shelves or other spacious storage systems can be arranged on the sides.
Photo gallery
A small kitchen of 8 sq m, despite its size, can have the best layout and have a cozy and stylish design. Thanks to modern materials, fashionable accessories and competent style solutions, it is possible to achieve a beautiful, unusual and most importantly ergonomic interior.










































