Layout 14 squares
The design of a 14 m2 kitchen always starts with a plan: this will allow you to competently use all the free space and create an ergonomic space. The good news is that you have access to any shape of the kitchen - from the minimalistic linear to the roomy U-shaped (more on this in the paragraph about the kitchen set).
In the photo, the interior of the kitchen is 14 sq m
However, you should take into account the geometry of the kitchen and its features:
- Square. In a spacious kitchen with equal sides, a corner or U-shaped set will perfectly fit. A parallel design works well when the two parts are mirror images of each other.
- Rectangular. Give up the idea of a two-row layout - it makes the room visually longer. A straight line is placed along a short wall. The most optimal solution is a corner kitchen, it will balance a room of 14 sq.
What color is better to arrange?
14 square meters does not limit you in the choice of colors.
- Light. White, gray, beige, pastel shades visually increase the space. Dilute them with contrasts to show the character of the kitchen.
- Dark. Especially popular in the loft style. For 14 square meters, you need to take care of good lighting, otherwise the room will be too gloomy. This effect will also help to avoid light colors - a white tabletop or apron, wallpaper. A combination of gray, brown or black with a wood texture, red or white brick looks stylish.
- Bright. Too lurid will look like the house of a Barbie doll, so use contrasting colors should be dosed. Combine them with faded or dark tones.
The photo shows the interior in turquoise colors
What to consider when repairing?
Floor. The most durable material is tiles in combination with the "warm floor" system. When choosing a laminate or linoleum, pay attention to the class: choose the one with moisture protection. You can combine materials for zoning - tiles for the worker, laminate for the dining room.
Ceiling. Minimalistic stretch or dyed will look great in any style. The curtain for the hinged structure can be either glossy or matte.
Walls. The optimal solution for a kitchen of 14 square meters is washable wallpaper or paint. A small drawing is suitable for Provence, a large one for a classic style. The monochromatic surface is versatile and will fit into any interior.
Apron. The most practical thing is the tile - the elements can be both small (honeycomb, hog) and large. Without upper cabinets, the height of the apron must be increased to at least 1 meter, or the tiles must be laid out to the ceiling.
In the photo, the corner layout of the kitchen
How to furnish a kitchen?
The interior and design of the kitchen with an area of 14 squares is determined not only by the finish, but also by the selected furniture and appliances.
Photo of a kitchen 14 sq m with a refrigerator
The area of the room allows you to conveniently place even a large refrigerator. Where to put it depends on the kitchen layout option:
- Near the window. A tall aggregate in this area is the least noticeable.To make it more convenient to use, the doors should open to the window - the ability to outweigh them is in all modern models. Do not place closer than 45 cm to the stove.
- At the door. Together with several pencil cases, you create an excellent storage area. Another advantage of the refrigerator at the entrance: it is convenient to unload shopping bags.
- In the corner. On the edge of the U- or L-shaped headset is the place for high technology. Doors should also open towards the wall, not away from it.
In the photo there is a dining area with a round table
Kitchen 14 m2 with a bar
The bar counter is often used as an additional working area - then it is made in the form of a peninsula, keeping the height along the main table top.
The second popular option is the windowsill. In this case, you can admire the view from the window while eating.
It is not necessary to give up a table with chairs, the bar counter can be an area for single breakfasts. Or zoning the kitchen-studio on the part of the reception and preparation of food.
In the photo there is a bar counter with high stools
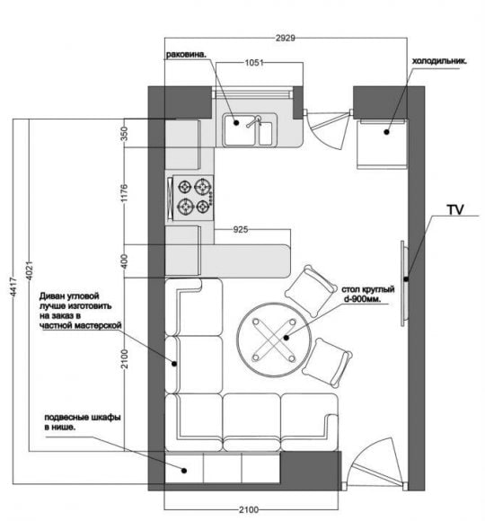
Kitchen design 14 meters with a sofa
A kitchen of 14 square meters will become much more comfortable if you place a comfortable sofa in it. However, you should not choose oversized models - prefer a compact kitchen option.
The corner model is preferable - it will provide a maximum of seats and is suitable for any layout.
Storage systems
In the kitchen of 14 square meters, you can afford an additional sideboard or sideboard, separate from the headset. This piece of furniture will be a great accent in the interior.
To use the space of 14 square meters to the maximum, order built-in furniture with an additional row of upper cabinets - they usually store rarely used items.
Do not neglect the additional storage located in the sofa, under the bar, on the island.
In the photo there is an additional sideboard for dishes
Which kitchen set is right for you?
- Straight. Its advantage is compactness, there will be room for a large sofa with a TV. In a square room, they are placed on any wall, in an elongated and narrow room - on a short one. Suitable for those who do not need a lot of storage and cooking space.
- Angular. The best option in which it is easy to build a working triangle. It looks interesting if one of the sides is located along the window - the tabletop on the windowsill is used as a working or dining table.
- U-shaped. Suitable for parallel kitchen layouts. The most roomy, convenient if 2-3 people are cooking. In this case, the dining area is made small, often built into the headset.
If you do not want to lose a single centimeter, order a built-in kitchen according to your individual dimensions. Experts will offer the most ergonomic option that suits you.
In the photo there is a U-shaped set with a niche for the refrigerator
What curtains are suitable?
Most often, minimalist Roman or roll curtains, as well as blinds, are chosen for the kitchen. If the window is far from the workplace, you can afford tulle or curtains.
On windows, into which the sun practically does not fall, it is better to refuse curtains altogether.
The photo shows a classic interior with curved facades
Organization of lighting
Bright light in the kitchen is a guarantee of comfort while working. A kitchen of 14 square meters requires not only a central chandelier, but also lighting zones:
- Working. LED strip, lamps built into cabinets, directional spots, spotlights are suitable. It should be very light above the countertop.
- Dining room. Here, the lighting can be dim. It is realized with the help of ceiling hangers, wall sconces, floor lamps.
Kitchen ideas in popular styles
The choice of style is primarily a matter of taste:
- luxury, gold, carved facades distinguish the classics;
- pastel colors, floral prints for Provence;
In the photo, a kitchen design of 14 m in a Scandinavian style
- clarity of lines, minimalistic decor, functionality highlight hi-tech;
- natural materials, natural palette declare an eco-style.
Design options
Joining the balcony to the kitchen allows you to increase the usable area, which will not be superfluous even for 14 square meters. Most often, a bar counter, a dining table, additional storage space or a lounge area are located on the balcony.
In the photo there is a bar counter on the windowsill
Bay windows are another great architectural component in kitchen decoration. Place a dining area by the window or put a set with a sink.
A window sill under a regular window can also be useful: a bar counter or a worktop is often placed on it.
Photo gallery
The choice of design solutions for your kitchen 14 square meters depends only on you. The main thing during the arrangement is to maintain space and add functionality.











































