Arrangement Tips
The kitchen is 11 sq m, more precisely, the interior design has its own nuances:
- Determine the priority area: for cooking or eating, based on this, calculate the size of each.
- Place a spacious table if 4+ people live at home or you regularly invite guests.
- Choose any color for the 11-meter kitchen. It doesn't need to be enlarged.
- Separate the stove top from the sink, and put the refrigerator on the edge.
- Line up the cabinets up to the ceiling to relieve the bottom.
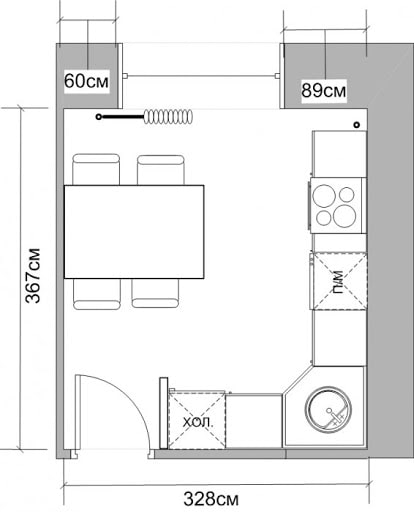
Layout 11 square meters
A kitchen area of 11 sq. M will even accommodate an island, if you bring the dining table into the living room. But the most common layouts are:
- Linear... The furniture is inexpensive and does not take up much space. Suitable for apartments where they like to eat more than to cook.
- L-shaped. Corner placement breaks popularity records in any kitchen. When building a working triangle on 11 square meters, make sure that the distance between the points does not exceed 3 meters.
- Double row... The parallel arrangement of the modules assumes a passage width of 100-120 cm. Place the sink, hob and work surface on one side, and the rest of the equipment on the other.
- U-shaped. Kitchen 11 square with the letter P allows you to use corners and provides plenty of storage and cooking space. A bench or bar can be built into it, creating a single work and dining area.
In the photo there is a refrigerator by the window in a bright interior.
The type of layout depends on your preferences and kitchen parameters:
- A long and narrow room of 11 square meters can be equipped in two ways: a two-row or U-shaped room will emphasize the parameters, and an L-shaped or straight one along a short wall will make the kitchen wider.
- You can do the same with a square one. They will stretch the planning room in 1 or 2 rows, and they will competently beat its kitchens in the form of the letters n or g.
- When drawing up a plan, also consider the presence of a window or balcony. A table with chairs or a work surface of a kitchen set is placed under the window.
The photo shows an unusual kitchen interior with a yellow wall.
What color is better to arrange?
11m2 does not need visual extension techniques, therefore, colors can be any.
Light white, gray, beige shades neutralize a lot of furniture.
A bright tone will make the interior unique - a headset, an apron or wall decoration can be colored.
Even in such an area, a dark color scheme should be used wisely so that the room does not look 2 times smaller.
Matte or semi-matt facades look more expensive than gloss.
In the photo there is a black kitchen set in a private house.
Finishing and renovation options
Renovation of the 11-meter kitchen combines aesthetics and practicality. For walls, floors and ceilings, non-staining and easily washable materials are needed.
- Ceiling... Can be whitewashed or dyed, tension, panel. In the price-quality ratio, the stretch ceiling wins: it hides any irregularities, is easy to clean. Painted or whitewashed requires careful surface preparation, and the ceiling made of PVC panels can turn yellow in places where it is heated.
- Walls... Buy materials that are resistant to cleaning, high temperature, humidity. Washable wallpaper or paint simplifies the renovation process and suits any style. Imitation brick masonry fits perfectly into the loft. Tiled walls are suitable where there is a lot of cooking.
- Apron... Simple and functional option - ceramic tile... It is easy to clean, withstands high temperatures and high humidity.
The photo shows a stylish dining table made of wood and glass.
- Floor... TOP-3 floor coverings for the kitchen 11 sq. tile, laminate and linoleum... The warmest, safest, and easiest to install is the last option. The laminate must be waterproof, non-slip, with a protective layer, otherwise it will swell from moisture. The most durable floor is tiled, the coating should also not slip, and under it lay a warm floor system.
How to furnish a kitchen?
You have already decided on the arrangement of kitchen furniture, it's time to think over the final design of the 11 sq m kitchen.
Ideas for a kitchen with a refrigerator
Refrigerator location directly depends on the layout of the headset and the initial parameters of the room.
In a linear or angular layout, it is located by the window. In any version of the 11 sq. Kitchen, it can be built into a pencil case or placed next to it - so the room will not seem cluttered.
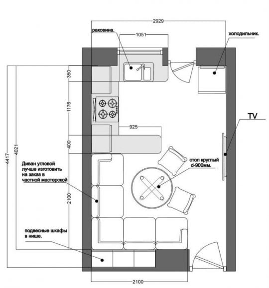
Kitchen design 11 sq m with sofa
If the set in the 11 sq. Kitchen is made in 2 rows or in the shape of the letter P, choose a built-in sofa. In the linear and L-shaped layout, it is carried over to the opposite side.
On the picture kitchen with a voluminous sofa against the wall.
When there is a lot of space in the room, they put corner sofa... To save space - straight. If additional storage is needed, they are changed to a bench with boxes under it.
In the photo there is a kitchen of 11 square meters in white and gray tones.
Bar counter examples
Bar counter it is used in two cases: 1-2 people live in the apartment, or in addition to the dining room, a separate snack area is needed.
The rack, placed at the level of the table top, is used as an additional working area. The vertical drop kitchen peninsula provides both extra storage and cooking space as well as convenience for snacks.
Arrangement of the dining area
An area of 11 square meters requires zoning: different parts for cooking and eating.
Per dining table all family members must fit. Square or rectangular suitable for sofa, round for chairs.
Organization of storage systems
If every thing has its place, the apartment will be clean and tidy. A few tips for optimizing storage:
- Replace lower cabinets with drawers - they are more spacious and more convenient.
- Think over the position of the equipment in advance, the built-in is preferable.
- Order sliding or lifting mechanisms instead of hinged ones for the upper facades, it will be safer.
- Get fittings for corner modules to get the most out of them.
- Organize additional systems - mezzanine, shelves.
Lighting features
Spot lighting not only delimits, but also creates the right mood.
Bright light for cooking can be in the form of a diode strip, pendants or sconces.
Subdued lighting of the dining area is realized with the help of one or more chandeliers, you can put a sconce in the corner.
The photo shows the original chandelier in the interior of the kitchen 11 sq m.
How does the interior of the kitchen look in popular styles?
Kitchens with an area of 11 sq m will look great both in neoclassicism and modernism, as well as in provence or country.
The photo is dark loft style kitchen interior with a brick wall.
Modern minimalism with neutral decor will provide order in the room. Its differences are the absence of unnecessary details, natural materials, laconic technique.
An interior in which you want to consider a lot of details - country, provence or scandi... Designers recommend creating coziness with little things like hanging pans and colorful textiles, as well as the classic combination of wood and white surfaces.
Kitchen-living room design 11 squares
It is not customary to decorate a kitchen, unlike a living room or a sleeping place: but it is the decor that will add zest to any renovation.
In the photo, a variant of the kitchen-living room is 11 sq.
- Purchase a decorative hood that matches your style so as not to hide it.
- Hang up light-colored curtains to expand the space.
- Slip on chair covers or throw cozy pillows on the sofa for contrast.
- Arrange pretty utensils, green herbs and cookbooks in the cooking area.
- Hang a suitable picture or photo at eye level on a free wall.
Tip: Follow the rule of moderation: bright kitchens have bright decorations, colorful ones - moderate decor.
Modern design ideas
Redevelopment kitchens with access to the balcony is to combine these premises. The simplest and most inexpensive option is to insulate, dismantle the internal glass unit with a door.
The photo shows the option of connecting a room with a balcony.


If the area of the balcony allows, a dining table can be placed on it. Or make a bar counter on the former windowsill. Another idea is a relaxation space with comfortable seating and a TV.
Photo gallery
Always start your kitchen renovation with a plan - how the furniture and household appliances will stand, how many sockets you need, where to place the lamps. This way you can be sure that the space will suit your lifestyle.













































