Layout 16 sq m
When choosing a planning solution for a kitchen-living room of 16 square meters, first of all, the lifestyle of all family members is taken into account. Before starting the merger, it is necessary to draw up a room plan, on which it is noted where the heating system and other engineering communications will be located. They also carefully think over the placement of furniture items, so as to save useful meters and preserve the aesthetic appearance of the interior. There are several of the most successful types of planning.
Rectangular kitchen-living room 16 squares
The rectangular kitchen-living room of 16 square meters is perfect for zoning. In this case, when dividing a room, a place for cooking is equipped near a window in order to improve ventilation.
In an elongated room with two parallel walls longer than perpendicular, different design techniques are used to give the room proportionality. The rectangular kitchen-living room does not imply the installation of oversized furniture items, so the interior is furnished with compact models.
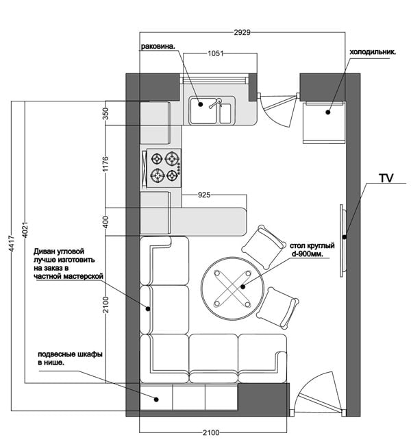
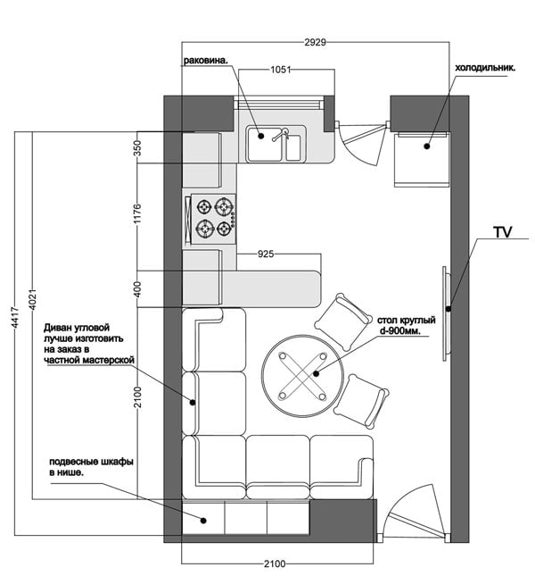
The photo shows the layout of the kitchen-living room with an area of 16 square meters in the shape of a rectangle.
You can also make the room proportional using lighting. It is better to decorate the ceiling with built-in spotlights and complement the atmosphere with tall floor lamps. Thus, a smooth diffusion of light will be created and a rectangular kitchen-living room will acquire visual comfort.
In the photo there is a rectangular kitchen-living room of 16 square meters with a dining area.
Examples of a square kitchen-living room
Unlike a rectangular space, a square room allows you to save more space in the center. The furniture is conveniently placed near the walls, and a floating functional area is arranged in the middle, which, if necessary, is appropriate to occupy with a dining table.
The kitchen-living room of 16 square meters with a square configuration is distinguished by mixed, not precisely and ergonomically divided areas. The sofa is most often installed opposite the working segment, and the dining group, island and other elements are located on the sides.
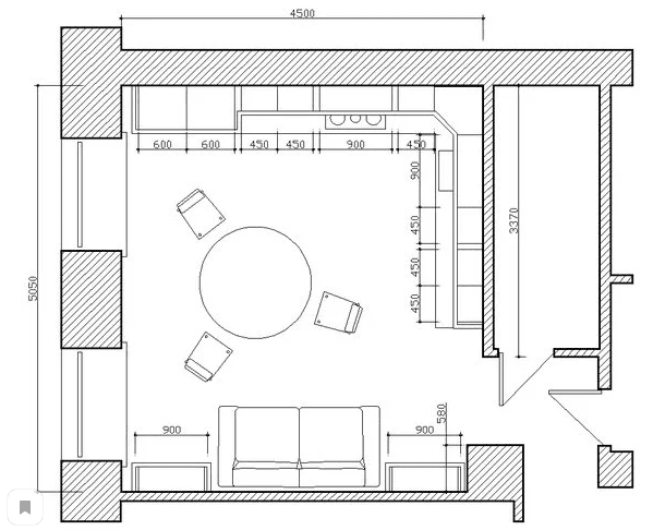
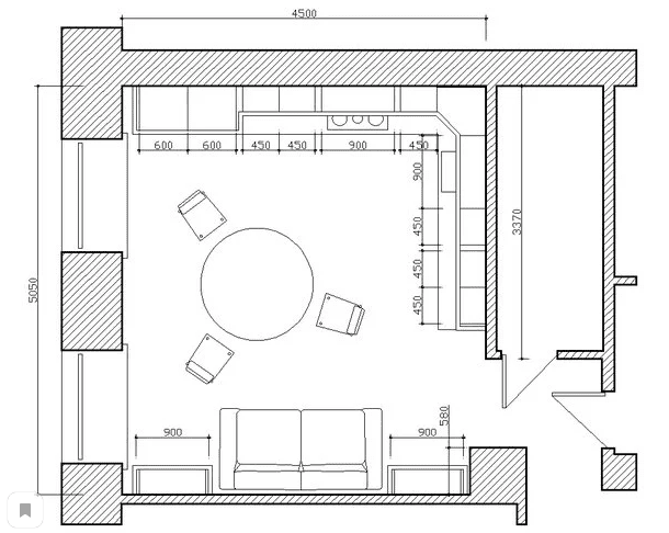
The photo shows a modern design of a kitchen-living room of 16 m2 in the form of a square with a dining area located in the center.
The correct layout is the main advantage of the square-shaped room. In such a room, imbalance is not felt, so there is no extra cost to correct the asymmetry of space.
For arranging a square kitchen-living room of 16 meters, furniture of any size is suitable. You can choose a symmetrical arrangement of objects, for this, the reference point of the room is determined from which the paired arrangement of elements is carried out.
In the photo there is a square 16-meter kitchen-living room with a corner set and a compact sofa.
Kitchen-living room 16 m2 with loggia
A layout with a balcony can be present both in a modern apartment and in an old building.By combining the kitchen-living room with a loggia, the real space is significantly increased, the room becomes more spacious, bright and attractive.
An additional balcony area can be arranged as a small seating area with a sofa and TV, or you can install a dining group and highlight this area with stylish and colorful lighting. The opening is made in the form of an arch, semi-arch, or equipped with a bar counter.
In the photo there is a light interior of a kitchen-living room of 16 squares, combined with a loggia.
Zoning options
In the interior of the kitchen-living room of 16 sq m, which does not have the largest area, the designers do not advise using dimensional and voluminous zoning elements that conceal the useful space.
The most popular way is color zoning. The kitchen area is done in one color range, and the living room in another. They choose both close and completely contrasting colors.
To delimit a room, different finishing materials are ideal. Walls in one area can be painted and tiled, and on another, wallpaper and laminate flooring can be used.
Spot lighting or an elevation in the form of a podium will also help to draw the border between the zones.
It will be appropriate to zone a small kitchen-living room of 16 square meters with glass decorative partitions, rack structures or models in the form of metal grates, decorated with plants in hanging pots. A mobile screen will be an equally good solution.
In the photo there is a kitchen-living room of 16 square meters with zoning through shelving and flooring.
In the kitchen-living room, zonal division can be carried out through the use of furniture. For this, the installation of an island kitchen set, a rack or a sofa, with its back turned towards the cooking zone, is suitable. The bar counter will also ideally fit into the design, which, due to its versatility, not only zones the room, but also acts as a dining table.
How to position the sofa?
For a small kitchen-living room with an area of 16 sq m, a corner or classic straight sofa will be appropriate, which is better placed along one long wall so as not to clutter up the room.
To save space, and to achieve a beautiful furniture composition, the installation of a sofa with a back to the window opening will allow.
In the photo there is a corner sofa located near the window in the kitchen-living room with an area of 16 square meters.
An interesting solution would be the location of the sofa in the middle of the room at the junction of two functional areas. This furniture arrangement organizes two separate areas in the space.
Features of the arrangement
The furnishing of the kitchen and living room completely depends on the preferences of all family members. A linear or L-shaped headset will perfectly fit into the design, which effectively uses the corner in the room. Designs with corner cabinets, cabinets and shelves are the most practical option. Due to this model, there is more free space in the living room area for installing an upholstered corner with a coffee table.
Another way to save the square footage in the reception area is to equip the kitchen with roll-out furniture, retractable worktops and worktops, and replace the traditional square hob with a narrow hob.
In the interior of the living room kitchen, you can plan the placement of a U-shaped structure or a kitchen set with a compact island. This module will zone the room and act as a dining, work area and storage system for dishes and other items.
The photo shows an example of arranging a kitchen-living room of 16 square meters with a linear set and a seating area in the center of the room.
A small suite with built-in household appliances in combination with a bar counter is perfect for arranging the kitchen area, and a spacious corner sofa, coffee table, console or TV wall for the living room.
A dining group with a table and chairs is mainly placed on the border between two areas.For a large family, you can choose a small table with the possibility of transformation.
Modern design ideas
The style direction determines the size and functionality of the room. A small studio apartment can be decorated in the style of minimalism, high-tech and loft, choose a modern or eco-design. The interior of the kitchen-living room in the country or in a country house will perfectly complement a rustic country, Provence or Alpine chalet. It is desirable that all zones in a combined space be made in a single style to create a harmonious composition.
In the photo there is a stylish design of a kitchen-living room of 16 sq m in a loft style.
Without decor and accessories, the furnishings of the kitchen and living room look unfinished as various little things are the final touch in the interior design of the room. It is enough to decorate the workplace with kitchen utensils, oven mitts, towels and unusual spice jars. Fresh flowers or stands with decorative plants will look great in the living room.
Glossy, mirror elements and furniture with transparent glass facades will bring additional lightness to the room.
If both zones have a window, the contrasting design will be an original solution. The kitchen can be supplemented with strict blinds, and curtains or curtains can be hung in the guest sector.
In the photo there is a light kitchen-living room of 16 squares with a large mirror and a white suite with a glossy facade.
Photo gallery
The kitchen-living room of 16 squares with a thoughtful renovation and competent design will meet the needs of all family members and reflect modern interior trends, as well as provide a cozy space for a pleasant stay.





























