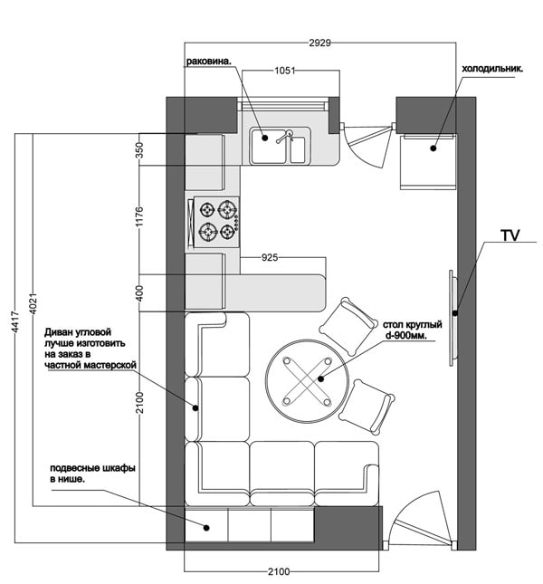
Layout 15 sq m
First of all, before starting repairs to combine the kitchen-living room, you need not only to think over the design, but also to draw up a plan in advance with an approximate zoning. In a room of 15 squares, all functional areas should be provided in the form of a recreation area, a place for cooking and a dining segment. The layout directly depends on the shape of the room, the placement of window and door openings, as well as on where the communications are carried out. There are already ready-made kitchen-living room projects with an area of 15 sq.
Rectangular kitchen-living room 15 squares
In a rectangular room, light colors are appropriate, which will visually expand the space. A kitchen set with glossy cabinets will fit perfectly near the window, and a soft area with a sofa will perfectly fit into the far corner of the opposite wall. Thus, the working segment and the resting place will be sufficiently distant from each other.
For a narrow room, a U-shaped layout or a linear arrangement of furniture items along the walls is suitable.
Corner set will allow you to adjust the configuration of the elongated kitchen-living room. When installing such a structure, a window sill is sometimes used and turns it into an additional work surface, table or niche in which a dishwasher or washing machine can be placed.
The photo shows the design of a rectangular kitchen-living room of 15 squares in the Khrushchev apartment.
A two-row layout will be an excellent option for a kitchen-living room of 15 square meters, which has an average width. In this case, the dining area is located near the window or transforming furniture is purchased.
A rectangular dining table can be placed as a zoning element in a narrow room near one elongated wall.
In the photo there is a linear arrangement of furniture in the interior of the kitchen-living room of 15 square meters of rectangular shape.
Examples of a square kitchen-living room of 15 m2
This room allows you to equip a kitchen area in one of the corners and separate it from the living room with furniture. For a square kitchen-living room, a two-row arrangement is also suitable, involving the installation of furniture elements along parallel walls. Thanks to this layout, it is possible to create a convenient place for cooking and equip the interior with a sufficient number of storage systems.
A dining area with a square or round table will perfectly fit into the design of such a kitchen-living room.
Since in a square room there is often a feeling of a closed space, a variety of visual techniques are used to improve the configuration of the space. The walls are decorated with horizontal stripes, which expand the room and visually make it much more spacious.
The location of the door plays an important role in the design of a square kitchen-living room. If the opening is in the center of the wall, choose an angular or two-row layout.
The photo shows the layout of a square kitchen-living room of 15 m2 with a dining area, complemented by a round table.
Zoning ideas
The simplest and most affordable way is zoning with furniture items. A sofa or dining table is perfect for this. You can differentiate the room with the help of a bar counter, which will not only give the atmosphere a stylish look, but also turn into a favorite place for a quick snack or breakfast. Also, the pass-through rack will perfectly cope with the function of dividing space.
To maximize the saving of usable space, the kitchen-living room is zoned using different wall and floor finishing materials. The cooking area is decorated with tiles or plastic panels, and wallpaper, parquet or laminate are used in the living room.
Separate functional areas in the combined room can be highlighted in color. The main thing is that the shades are combined with each other and in harmony with furniture, household appliances and cladding. To give the interior a more stylish look, designers recommend choosing furniture that will contrast with the calm general background.
In the photo, zoning with a multi-level false ceiling in the design of the kitchen-living room is 15 sq m.
In the interior of the kitchen-living room there are 15 squares, visual zoning is performed with contrasting lighting. The working area is equipped with powerful devices with an intense light flux, and the resting area assumes a more subdued light. You can mark the border between the areas with the help of several wall, ceiling lights, built-in lighting or LED strip.
To create a modern and fashionable design, it will be appropriate to make a podium and delimit the space with different floor levels.
An interesting solution would be a light wooden or glass partition. Also, weightless curtains and mobile screens are suitable, which at any time you can simply remove and combine the kitchen area and living room.
How to position the sofa?
In a room with a linear kitchen set, the sofa can be installed near a parallel wall. A small straight sofa will successfully fit into the window-sill space, and the corner upholstered furniture rationally uses an empty corner in the room.
In the photo there is a sofa located along an elongated wall in the interior of a rectangular kitchen-living room.
In a square kitchen-living room, a sofa is placed on the border between two zones. The structure is located with its back to the working area, and a wall-mounted TV is hung in front of it. This option is the most convenient and versatile.
In the photo there is a kitchen-living room with an area of 15 m2, decorated with a gray corner sofa.
How to arrange a room?
The main furnishings of the kitchen-living room of 15 square meters are elements in the form of a headset, a sofa and a dining table with chairs. Items should not only correspond to the style of the room, but also be compact and functional.
A dining group in a small space usually takes up a minimum amount of space. Sometimes, to save space, the table is replaced with a bar counter.
The relaxation area in the interior of the kitchen-living room is 15 square meters; it is better to furnish upholstered furniture with practical and well-washable upholstery. A rectangular or corner model is perfect, which can be supplemented with a small coffee or coffee table.
The working area should contain kitchen furniture and all necessary household appliances such as a refrigerator, stove, oven, dishwasher and microwave.
To visually increase the space, the kitchen combined with the living room is equipped with transparent plastic furniture and glass elements are used.
The photo shows an example of the arrangement of a kitchen combined with a living room.
Options for a combined kitchen with a living room in various styles
The kitchen-living room can be decorated in a high-tech style, which assumes the presence of simple forms, a minimum of decor and a large amount of lighting to visually expand the space. The interior is kept in black, white, gray and cream colors. In the decoration, the use of metal, plastic, brick and frosted glass is appropriate.
The design in a classic style is distinguished by furnishings from natural materials and a wooden kitchen set, behind the facades of which all modern technology is hidden. The room is decorated in pastel colors and is decorated with stucco, gilded, bronze elements and other luxurious details.
In the photo, the design of the kitchen-living room is 15 squares in the loft style.
A loft can combine ultra-modern, functional appliances and retro appliances at the same time. This combination makes the furnishings incredibly stylish and original. The recreation area can house restored antique furniture, and the kitchen is decorated with a custom-shaped dining table with chairs made of bright colored or transparent plastic.
In the photo there is a kitchen-living room of 15 square meters with an interior made in the style of an American classic.
Interior design ideas
The cooking area and the dining segment are best done in warm colors that will improve appetite, and the place for rest and relaxation should be decorated in soothing cold tones.
The photo shows a variant of the design of the kitchen-living room with a bright accent in the form of a small sofa with orange upholstery.
It is possible to revive the atmosphere of the kitchen-living room of 15 square meters by means of decorative elements and colorful accents. When using bright blotches, take into account the following rule: large and bulky objects should have a less saturated color. Small decor and accessories, on the contrary, should be chosen in deeper shades.
Photo gallery
A kitchen-living room of 15 sq m will become a rational and practical interior solution for people who live in a house, apartment or studio with a small area. Thanks to sensible zoning, a competent choice of style and correctly selected furniture, it is possible to achieve a harmonious design with an individual design.

































