Design features
A number of basic nuances:
- The choice of color is the most important step in the design of the kitchen-living room. The visual perception of the room will depend on the shades of the floor, ceiling and walls. Cold and neutral colors are most beneficial.
- An equally important aspect is the selection of a style solution. It is better to keep the kitchen combined with the living room in the same style. Different design directions, contradicting each other, can spoil the impression of the interior.
- In the room, consider separate lighting. A large amount of light should be present in the working area, and a dim backlight will be enough on the border between the two areas.
- When planning a kitchen and living room in a private house with a huge area, you can go beyond the choice of furniture items and design projects.
Pros and cons of combining
Before connecting rooms, you should pay attention to the advantages and disadvantages of such a solution.
| pros | Minuses |
|---|---|
It turns out to plan a single spacious and bright space in which several functional areas are located. |
Smells and sounds of the working kitchen process will penetrate into the recreation area. To partially solve the problem, you will need to install a powerful hood and purchase silent household appliances. |
| A small kitchen, due to its combination with an adjacent room, provides a convenient organization of a dining area next to the work area. | Combining rooms is a labor-intensive process that requires competent project development, organization of work for dismantling or moving walls, as well as obtaining approval for redevelopment from special organizations.
|
| Consolidation contributes to a significant reduction in traffic in a house or apartment. | |
| While cooking, you can communicate with family members or guests who are in the hall. | The room needs more thorough and frequent cleaning. |
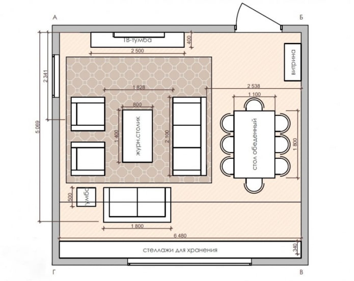
Layout
The kitchen and living room must fulfill certain functional tasks. The kitchen area is divided into three sections; a seating area and a dining group are organized in the hall.
Rectangular kitchen-living room
Despite some imbalances and not too attractive appearance, there are ways to elegantly decorate a rectangular room. In an elongated and long room, the semantic center should be highlighted and all attention should be concentrated on it.
It is better to place furniture and household items in one line and leave the parallel wall free. The U-shaped layout will organically fit into the room, which uses corners and saves useful meters.
The photo shows the design of a rectangular kitchen-living room in white and beige tones.
Square kitchen-living room
An island type of layout is suitable for a square room.Due to the arrangement of furniture in small groups, it is possible not only to take into account all the design features of the kitchen-living room, but also to clearly plan the space.
The furniture can also be installed near one or two parallel walls using the peninsular, U- or L-shaped method.
The photo shows the layout of the combined square-shaped kitchen-living room.
Kitchen combined with living room with two windows
The main design idea in a room with two windows located on the wall opposite the doorway is symmetry. Any style will fit into the kitchen-living room setting, which assumes the presence of symmetrical details and structures.
It is better to furnish the interior with custom-made furniture and kitchen sets.
The photo shows the design of a spacious kitchen-living room in a modern style with two window openings.
Interior with one window
The plan of a room with one window opening requires additional lighting. Pendant lights, spotlights, chandeliers and built-in light sources are installed in the area of the stove, sink and above the countertop.
A glass partition is ideal as a zoning element, which will provide unobstructed penetration of light into all corners of the kitchen-living room.
In the photo there is an elongated kitchen, combined with a living room with one window opening.
Open plan options
Such a planning solution is versatile and fits well both in a small studio apartment and in a huge apartment. The open type of layout gives the room a sense of spaciousness and freedom.
The photo shows the interior of a studio apartment with an open-plan kitchen-living room.
Examples of non-standard layouts
The kitchen-living room of an unusual shape is distinguished by the presence of one, two or more atypical corners. In order to balance the wrong layout, space zoning is performed. In a trapezoid-shaped room, you can highlight functional areas with a contrasting color or design a podium. Furniture items and shelves built into niches will help create standard right angles in a triangular room.
In the photo there is a kitchen-living room of a non-standard trapezoidal shape.
Zoning options
For the conditional delimitation of the room, upholstered furniture in the form of a rectilinear, corner sofa or a pair of armchairs is installed on the border between the zones.
A dining group with a dining table and chairs can also act as a zoning element. This functional segment will not only help to divide the space, but also contribute to the correct planning of the location of the headset in the kitchen area.
An equally popular design technique is zoning using a kitchen island. Such a design will not completely block the space and interfere with free movement.
Another convenient way is the bar counter, which can simultaneously act as a dispensing table and a work surface.
In the photo, zoning with decoration in the interior of the kitchen-living room.
A variety of decorative partitions will perfectly fit into the interior. For zonal division, the installation of sliding glass doors, bamboo screens, plasterboard, plywood and wood structures or shelving is appropriate.
At the intersection of two zones, you can also hang blackout curtains, light curtains or beaded curtains.
If the layout of an apartment with a kitchen-living room is large and assumes a high ceiling, zoning can be done by means of a multi-level ceiling or floor design. To create clear boundaries, the kitchen area is placed on a low podium or highlighted using a lower stretch or suspended ceiling with a built-in lighting system.
Color solution
There are universal shading solutions that can give the interior of the kitchen, which turns into the living room, a truly stylish and fashionable look.
Kitchen-living room in light colors
A discreet and light scale visually enlarges the room. Use smoky, cream, beige and other delicate pastel palettes. A stylish kitchen-living room in white always looks fresh and airy. Thanks to the various variations of the snow-white shades, you can make the design more interesting.
In the photo there is a kitchen-living room, made in light blue, white and beige colors.
Subdued and warm tones make the environment clean and tidy, calm and have a relaxing effect. This color scheme is especially suitable for a small room with an open plan.
Bright kitchen-living room design
Saturated combinations are always relevant. They make the interior more dynamic and original. Bright, spectacular accents on a light background will favorably emphasize the design features of the combined kitchen-living room.
The photo shows a bright design of the kitchen-living room in the interior of the studio apartment.
Interior of the kitchen-living room in dark colors
Elegance and depth of dark shades allows you to create a noble interior filled with comfort and coziness. Such a palette will also help to equalize the color imbalance in the room, which is distinguished by non-standard sizes.
The photo shows dark gray-brown and emerald colors in the design of the kitchen, combined with the living room.
Finishes and materials
When renovating the kitchen-living room with the help of cladding, it turns out to visually zone the room without violating the overall style, and also, thanks to correctly selected finishing materials, take into account the features of each functional area.
Floor in the living room combined with the kitchen
The living room and kitchen area have completely different requirements in the design of the floor, therefore, two types of flooring are selected for decoration. The kitchen segment can be laid out with practical tiles with a straight or rounded transition to laminate or parquet, located in the guest area.
In the photo there is a kitchen area with floor tiles that turn into a laminate, laid out in the living room.
Walls in the kitchen-living room
Plastic panels and other washable materials are suitable for the kitchen. The apron zone is highlighted with ceramic tiles, which can contrast in color with the main wall covering. Thus, the working area takes on a more expressive look.
In the living room, the surface of the walls is pasted over with wallpaper with or without drawings, laid out with stone, brickwork or decorated with panels with a 3D effect.
Ceiling
In the interior of the kitchen and living room, combined together in one room, a multi-level system with built-in lighting is often installed. The ceiling can be made in white or have a specific color scheme for each zone.
Window decoration in the kitchen-living room
In the presence of two windows in a room, many designers recommend choosing an original asymmetrical design, however, a traditional interior often involves the same drapery of window openings, which combines two different spaces.
Furniture: selection and placement
Examples of the arrangement of the kitchen combined with the hall.
Sofa
In the design of the kitchen-living room, the sofa mainly acts as a zoning object and is installed with its back to the cooking area.
For a small room, an angular or straight model is suitable, which is installed near a perpendicular or parallel wall from the kitchen area.
The photo shows a modern kitchen-living room with a leather sofa with an ottoman.
Kitchen set
The design, first of all, should be convenient, and also have enough storage space in the form of boxes and shelves. It is better to choose a model with a closed front, which has a simple design. Beautiful sets can be placed on open shelves or you can purchase a stylish showcase.
The set is installed near one wall, they prefer a U-shaped design or a product with the letter g. With a sufficient amount of space in the center, an island with a work surface and lower cupboards is placed. This module can also be supplemented with a dining table.
In the photo there is a linear set with an island and a dining group in the interior of a large kitchen-living room.
Lunch group
When choosing, you should focus on the style of the two zones. It would be appropriate to equip a small-sized kitchen-living room with compact furniture in light colors or a transparent structure. A round dining table will harmoniously fit into the interior, which, thanks to its shape, looks more light.
In a spacious room, the table is placed near the wall or placed in the center. To do this, preference should be given to elongated rectangular models.
In the photo there is a kitchen-living room with a table located behind a low partition.
Modern interior ideas in various styles
Loft-style design involves the use of brick, stone, concrete finishes and metal materials. The presence of open communications in the form of wiring, pipes or a ventilation system is encouraged. This design does not meet the standard rules, but it is clear, minimal and comfortable.
A very popular solution for creating a functional and cozy kitchen-living room is the Scandinavian style. The decoration is characterized by light shades and natural materials. White color prevails here, which is diluted with accents of black, gray or brown. The room is decorated with discreet décor, photographs, paintings, carpets or plants.
The photo shows the design of the kitchen combined with the living room and dining room in the Scandinavian style.
In the interior of the kitchen-living room in a classic style, the prevalence of expensive materials in the form of stone, wood, exquisite ceramics and plaster stucco is appropriate. The premise assumes the presence of large windows and high ceilings. The seating area is furnished with furniture with chic fabric or leather upholstery and decorated with elegant accessories, in the kitchen they install a cream, beige or brown wooden set with household appliances from the retro collection.
In the photo there is a spacious kitchen-living room with a loft-style interior.
Photo gallery
Competent design approach and careful design of the union make it possible to make the kitchen-living room as comfortable as possible and form a unique design in the room.






























































