Layout
Before proceeding with the repair and organizing the surrounding space, you should pay attention to all the planning nuances of a small room.
The layout of a small square-shaped living room is quite symmetrical and harmonious. In such a room, any furniture can be conveniently placed along the walls or in the center.
The layout of the small rectangular living room is less proportional. Light curtains with a horizontal pattern will help to correct the shortcomings of a narrow shape. Short walls can be finished with brickwork or shelving with long shelves can be installed near them.
For wide walls, it is better to apply a mirror, glossy design or glue wallpaper with vertical stripes to expand the space. It is desirable to lay the floor covering in a parallel direction with respect to narrow walls.
The photo shows a modern design of a small rectangular living room.
Designing a living room of a non-standard shape involves the installation of semicircular furniture, coffee tables of an unusual shape and cabinets with beveled corners. Such a room should have high-quality lighting that penetrates into all parts of the room.
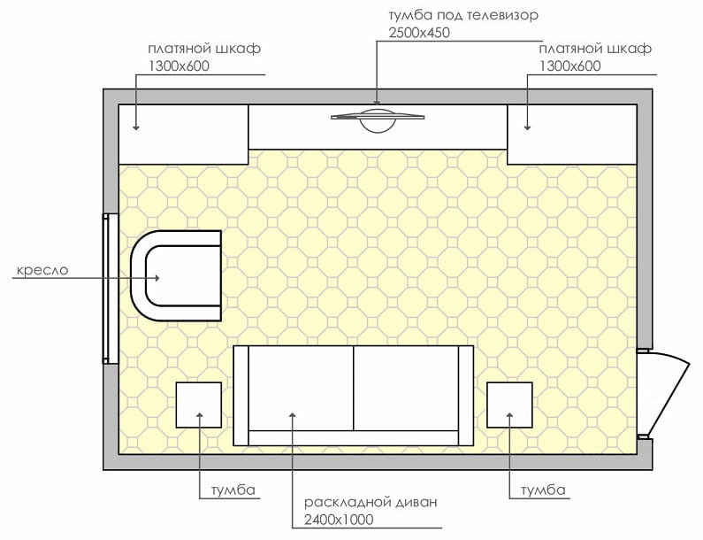
The photo shows the interior design of a square living room combined with a balcony.
For a small corner living room, you can use the usual furniture arrangement scheme. A place near a long wall can be furnished with a sofa with armchairs and a table. A neat corner sofa, chest of drawers or TV stand will perfectly fit into the corner between the two windows.
An effective way to increase a small area is to attach a loggia. A small hall, partially or completely combined with a balcony, not only becomes much more spacious, but also filled with additional light.
The photo shows a non-standard layout of a small living room with a half-window ledge.
Color
The interior decoration of a small living room should be designed in 2 or 3 neutral and muted light shades. The dark palette is sometimes found in flooring, individual furniture or decorative elements. A more restrained color scheme without contrasting and too bright inclusions will form a stylish design and a calm atmosphere in the hall.
White will be the ideal backdrop for cramped spaces. Whitish tones will add light and spaciousness to the setting, and also create wonderful combinations with other shades.
A living room in an apartment with a north orientation can be made in rich yellow colors that increase the space and fill the interior with positive energy.
The design of the living room in cold shades will look interesting. For example, a green and blue duet will add freshness to the atmosphere. Gray tones are also suitable for the design of a small room. So that such a design does not give a detached and uninhabited look, the room is complemented with warm accents.
Monochrome color performance is considered a very original design technique. For the interior of a small hall, it will be appropriate to use black and white colors with colorful elements.
The photo shows a modern design of a small living room in warm brown colors.
Furniture
For a small living room, it is better to choose furniture that is functional and modular, which does not take up useful space. A compact straight or corner sofa with a glass coffee table is suitable for organizing a seating area.
In the photo there is a white stand under the TV and a small corner sofa in the interior of the living room.
Through the use of glass shelves and countertops, the furnishings will look less congested and more airy and graceful.
Decor and textiles
In a small interior, it is better to refuse a large number of paintings, photographs and other decorative details that clutter up the room.
The walls of the living room can be decorated with a couple of large canvases with three-dimensional images or mirrors in simple frames. Natural plants or flowers in vases are ideal for decorating the hall. It is advisable to place moderate decor on the shelves in the form of books, figurines or interior candles.
In the photo there is a window sill with a typewriter and books.
The window in the living room is decorated with thin tulle curtains, Japanese, roller or Roman curtains. To visually raise the ceiling in the room, you should hang the curtains on the ceiling cornice, the width of the entire wall. It is not recommended to decorate the window opening with too pompous curtain ensembles and heavy curtains.
Sofa pillows will significantly embellish the interior. In a small living room, it is advisable to use monochromatic products of the correct geometric shape. A rug with a geometric pattern will add warmth and coziness to a cramped room.
Finishes and materials
For a harmonious and at the same time spectacular look, choose a high-quality cladding that is distinguished by its special aesthetics.
- Floor in a small living room it is better to lay it out with laminate, natural parquet or carpet. For a more extravagant design, stone, tiles, porcelain stoneware or a self-leveling floor with a glossy surface are used.
- Walls can be covered with plain paint, pasted over with seamless wallpaper, bricked or trimmed with PVC panels. To achieve a real expansion of a small-sized space will be achieved due to panoramic photo wallpaper with a 3D image.
- For ceiling decoration in a small living room, a white glossy stretch canvas is suitable. A ceiling that is too low can be decorated with white paint or whitewash.
In the photo, the walls in the interior of a small and narrow living room are painted in white and a wardrobe with tinted mirrored facades visually expands the space.
Visually adding a few useful meters to the living room will allow not only mirrored walls and a ceiling, but also lightweight through or glass partitions used for zoning a room.
Lighting
In a small room, one ceiling chandelier with a powerful luminous flux should be installed. It is not recommended to choose too massive and pretentious models if the ceiling in the living room in the Khrushchev is low enough.
The perimeter room can be decorated with neat spotlights, the walls can be supplemented with laconic sconces and shelves or individual interior items can be decorated with flexible LED strip.
The photo shows the ceiling light design of a small elongated hall in the English style.
The design of a small living room looks very original, decorated with stylized lanterns, garlands or luminescent elements.
Options for different styles
To decorate the interior of a small living room, they now choose a design in a modern style with functional and neat accessories. Straight lines and trendy finishes create a comfortable interior without unnecessary details.This laconic setting can always be diluted with home accessories - bright pillows, blankets or indoor plants.
Decorating in a Scandinavian style will help to expand the spatial boundaries in a small-sized hall, to fill it with freshness and natural light. A similar direction is characterized by boiling white, beige, light gray tones with saturated blotches.
The photo shows a small living room in a loft style with panoramic windows.
Since the loft-style design assumes the presence of bare walls and windows with panoramic glazing, the industrial concept blends harmoniously into the small living room. In such a room, in order to harmoniously equip the interior, a small sofa, a pair of ottomans or frameless armchairs, light open shelves or shelves will be enough.
In the photo there is a scandi-style in the interior of a small living room.
For very small living rooms, you should very carefully select the decor and pieces of furniture so as not to overload the space even more. You can install a compact sofa that will be as close to the wall as possible, one or two armchairs with high legs and a horizontal shelving unit with an open front.
For a fashionable, spectacular design and visual correction of the geometry of the room, one of the walls is highlighted with photo wallpaper with a volumetric pattern. If wallpaper with a print is glued in a small room, the curtains and upholstery should be of a single color.
A tiny room in a country house is often combined with a kitchen area. So that the atmosphere does not look cluttered, they adhere to a minimalistic arrangement and decoration in soothing colors. Natural finishes, combined with air curtains on the windows, will create a serene atmosphere in the interior of a small living room.
Photo gallery
Thanks to competent design advice and creativity, you can create a comfortable and stylish design for a small living room for a pleasant time with family or friends.













































